Обзор квартиры в "ЖК "Боровое""
В продаже 1-комнатная квартира в востребованном жилом комплексе "ЖК "Боровое"" 🏢.
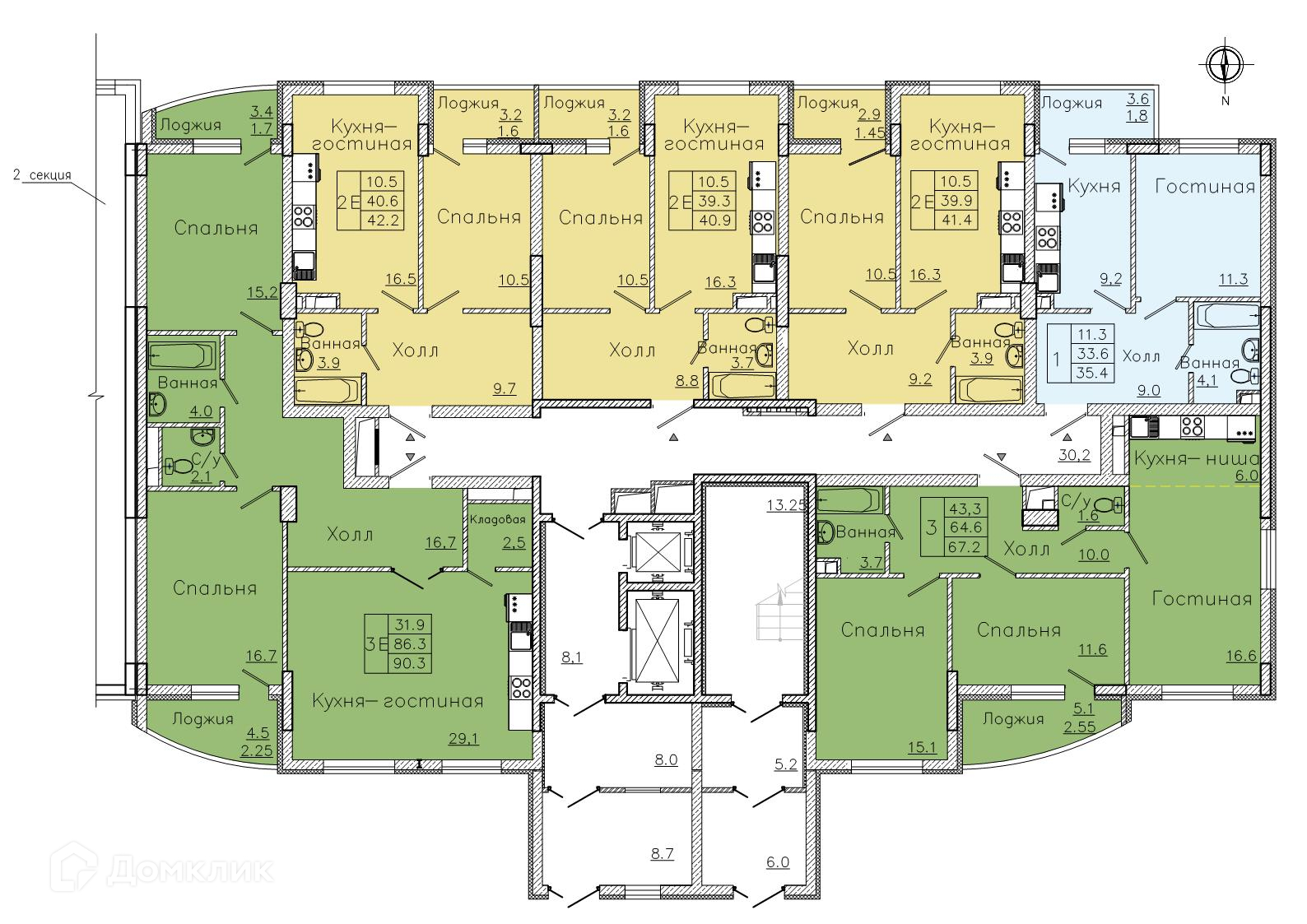
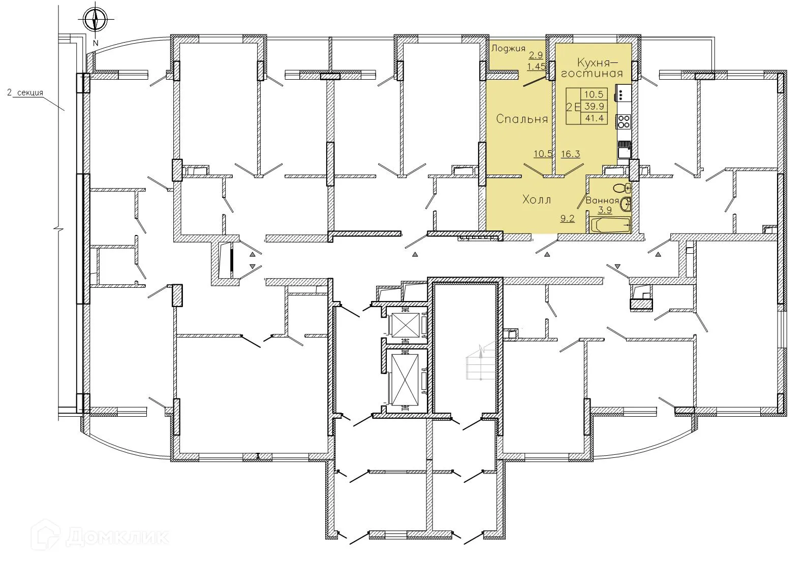
Квартира расположена на 5-м этаже 19-этажного дома.
Прекрасный выбор для комфортной жизни.
Продуманная планировка
- ✅ Общая площадь: 41.4 м².
- ✅ Светлая жилая площадь: 10.5 м².
- ✅ Кухня: 16 м² — идеальна для семейных ужинов.
Преимущества квартиры
- 🔧 Вариант отделки: предварительная отделка. Минимум грязных работ.
- 🌞 Панорамное остекление наполняют помещения природным светом.
- 🌿 Класс жилья: Эконом — высокое качество строительства.
Выгодные условия покупки
- 💳 Ипотека от 33 121 руб/мес.
- 🏦 Подходит под семейную и IT ипотеку.
- 🤝 Эскроу-счета гарантирует надежность.
Чтобы узнать подробности и проверить актуальную стоимость — позвоните нам прямо сейчас! 📞
Характеристики новостройки в ЖК "Боровое"
- Номер квартиры: 310
- Вариант отделки: предварительная отделка
- Общая площадь: 41.4 м²
- Жилая площадь: 10.5 м²
- Площадь кухни: 16 м²
- Класс жилья: Эконом
- Количество комнат: 1-комнатная квартира
- Этаж: 5
- Этажность дома: 19
Полезная информация о ЖК "Боровое"