Обзор квартиры в "ЖК "Боровое""
Доступна к покупке 1-комнатная квартира в современном жилом комплексе "ЖК "Боровое"" 🏢.
Квартира расположена на 2-м этаже 19-этажного дома.
Отличный вариант для комфортной жизни.
Продуманная планировка
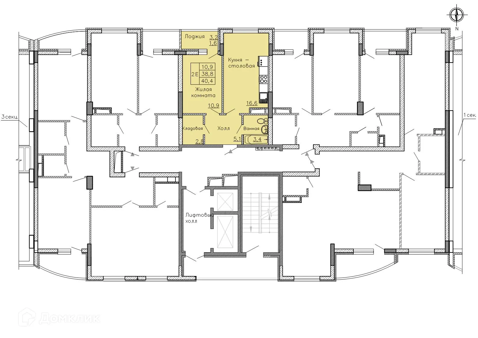
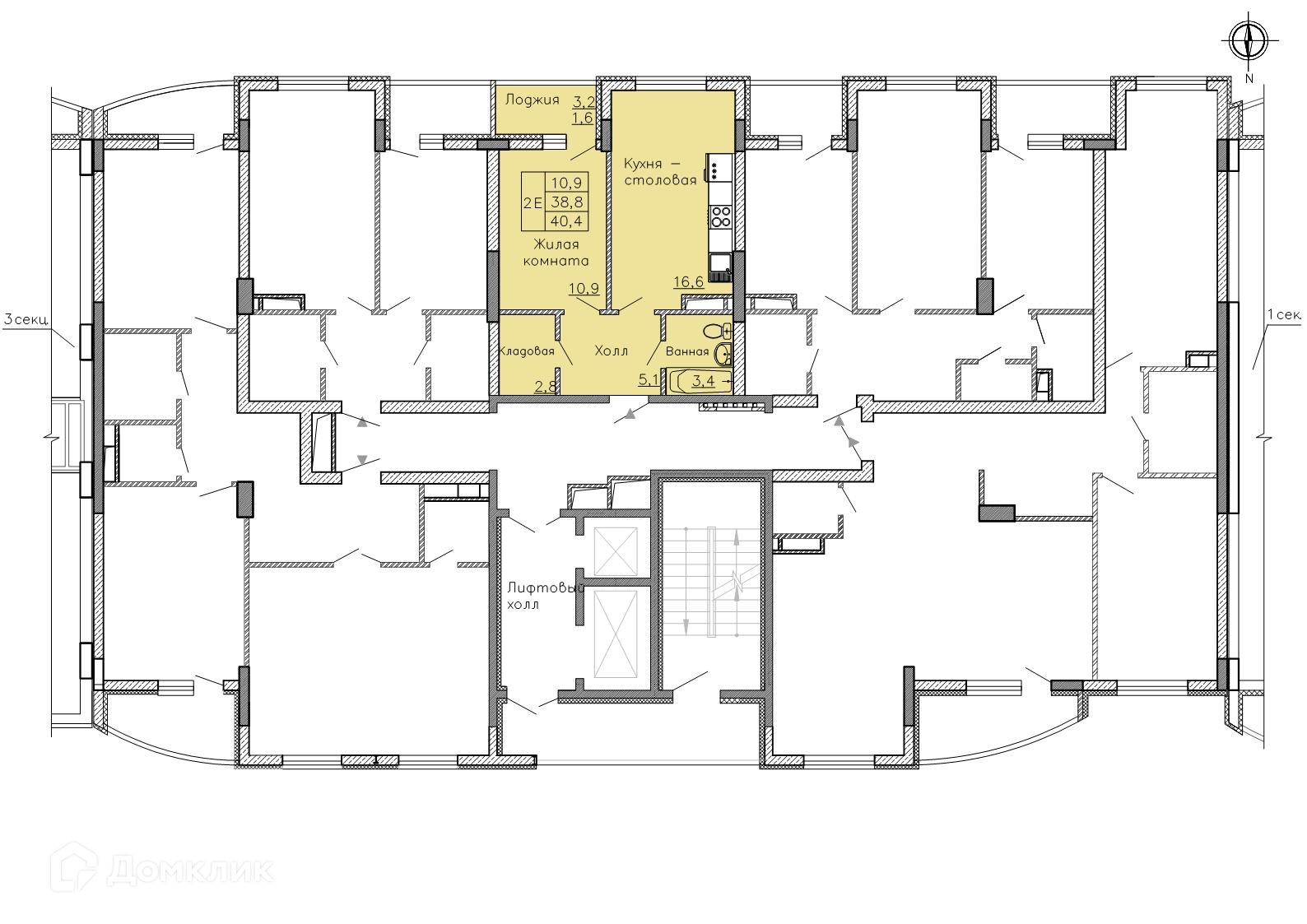
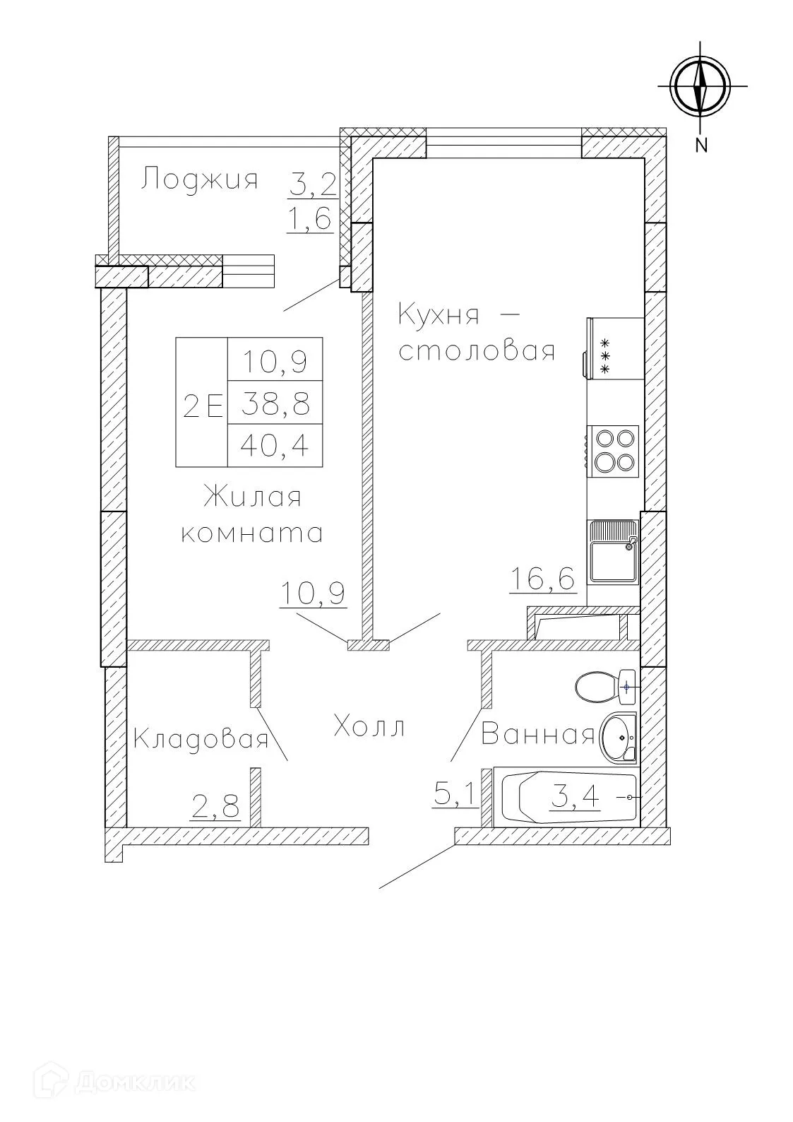
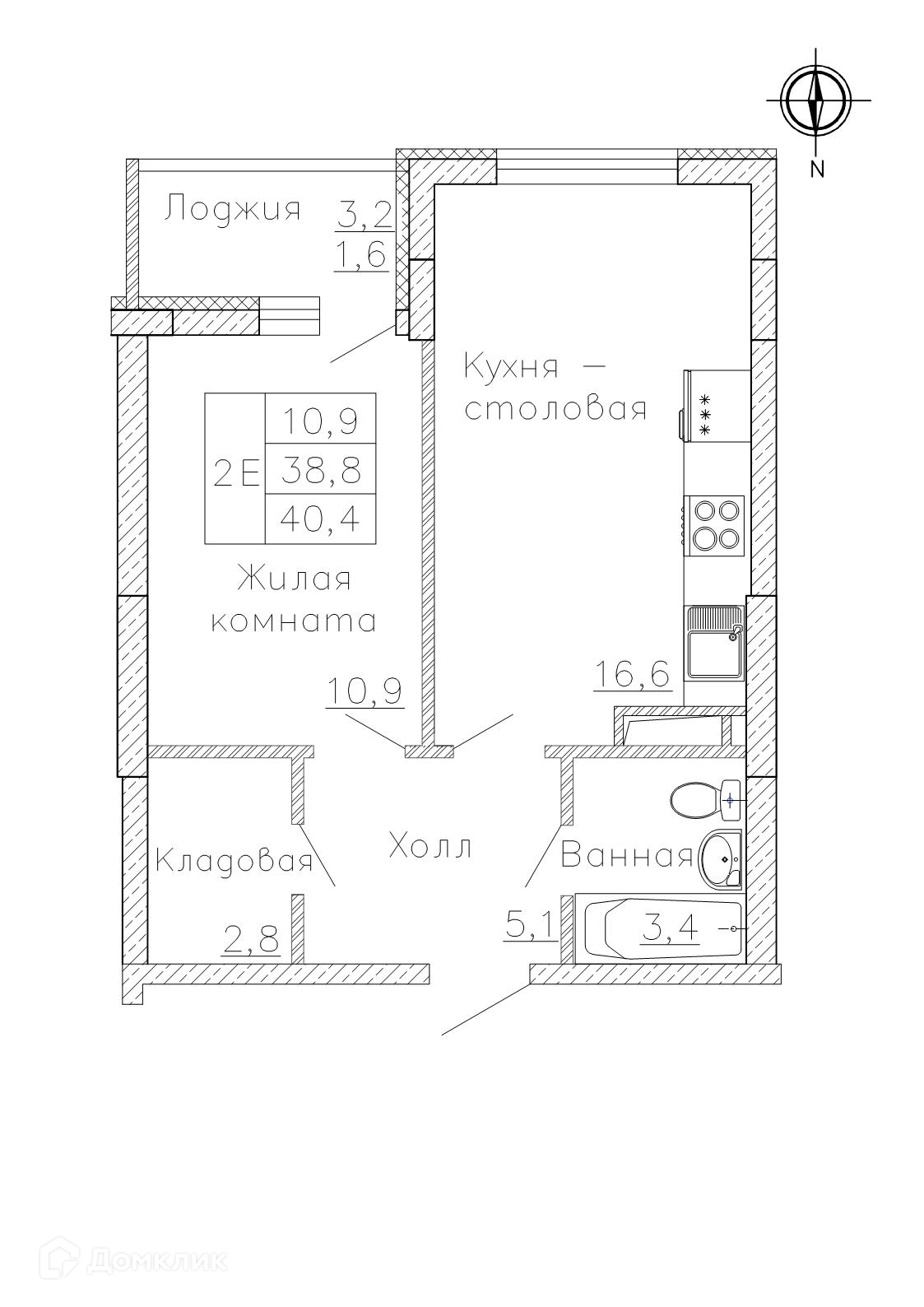
- ✅ Общая площадь: 40.4 м².
- ✅ Светлая жилая площадь: 10.9 м².
- ✅ Кухня: 16.5 м² — идеальна для семейных ужинов.
Особенности квартиры
- 🔧 Вариант отделки: предварительная отделка. Готовая база для вашего интерьера.
- 🌞 Большие окна наполняют помещения естественным светом.
- 🌿 Класс жилья: Эконом — современные технологии.
Финансы и ипотека
- 💳 Ипотека от 32 321 руб/мес.
- 🏦 Доступны льготные программы господдержки.
- 🤝 Эскроу-счета гарантирует спокойствие.
Чтобы забронировать эту квартиру бесплатно и проверить актуальную стоимость — свяжитесь с нами прямо сейчас! 📞
Характеристики новостройки в ЖК "Боровое"
- Номер квартиры: 296
- Вариант отделки: предварительная отделка
- Общая площадь: 40.4 м²
- Жилая площадь: 10.9 м²
- Площадь кухни: 16.5 м²
- Класс жилья: Эконом
- Количество комнат: 1-комнатная квартира
- Этаж: 2
- Этажность дома: 19
Полезная информация о ЖК "Боровое"