Другие планировки в ЖК "Боровое"

Планировка 3 комн. в ЖК "Боровое"
89.8 м²

3-комнатная

от 9 188 779 ₽

1 предложение

Смотреть планировку
Планировка 2 комн. в ЖК "Боровое"
66.4 м²

2-комнатная

от 7 060 533 ₽

6 предложений

Смотреть планировку
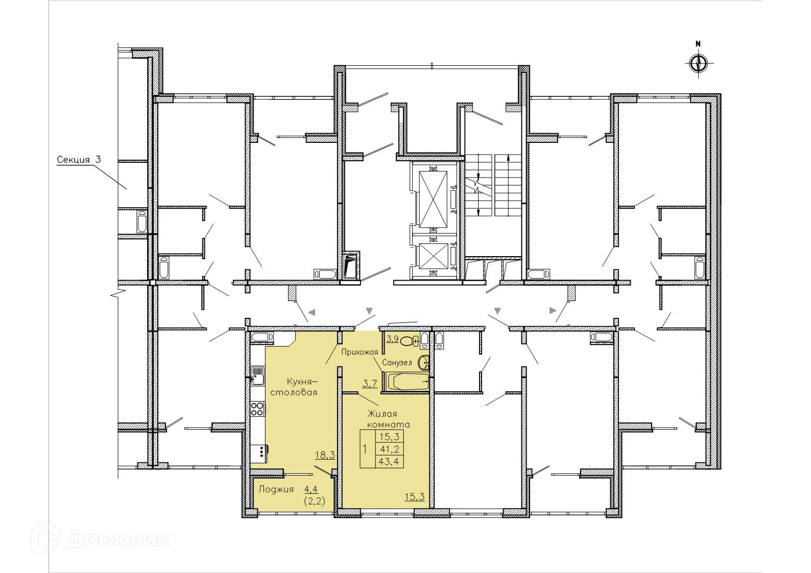
Планировка 1 комн. в ЖК "Боровое"
41 м²

1-комнатная

от 4 555 100 ₽

1 предложение

Смотреть планировку

Расположение

Срок сдачи: 4 кв. 2016 г.

Воронеж, улица Фёдора Тютчева, 105

Подробнее о ЖК

Срок сдачи: 4 кв. 2016 г.

21.1 - 98.4 м²

Площади квартир

Квартиры

Тип жилья

19

Этажность

Эконом

Класс жилья

10

Корпусов

кирпично-монолитный

Стены