Обзор квартиры в "ЖК "Боровое""
Предлагается 3-комнатная квартира в современном жилом комплексе "ЖК "Боровое"" 🏢.
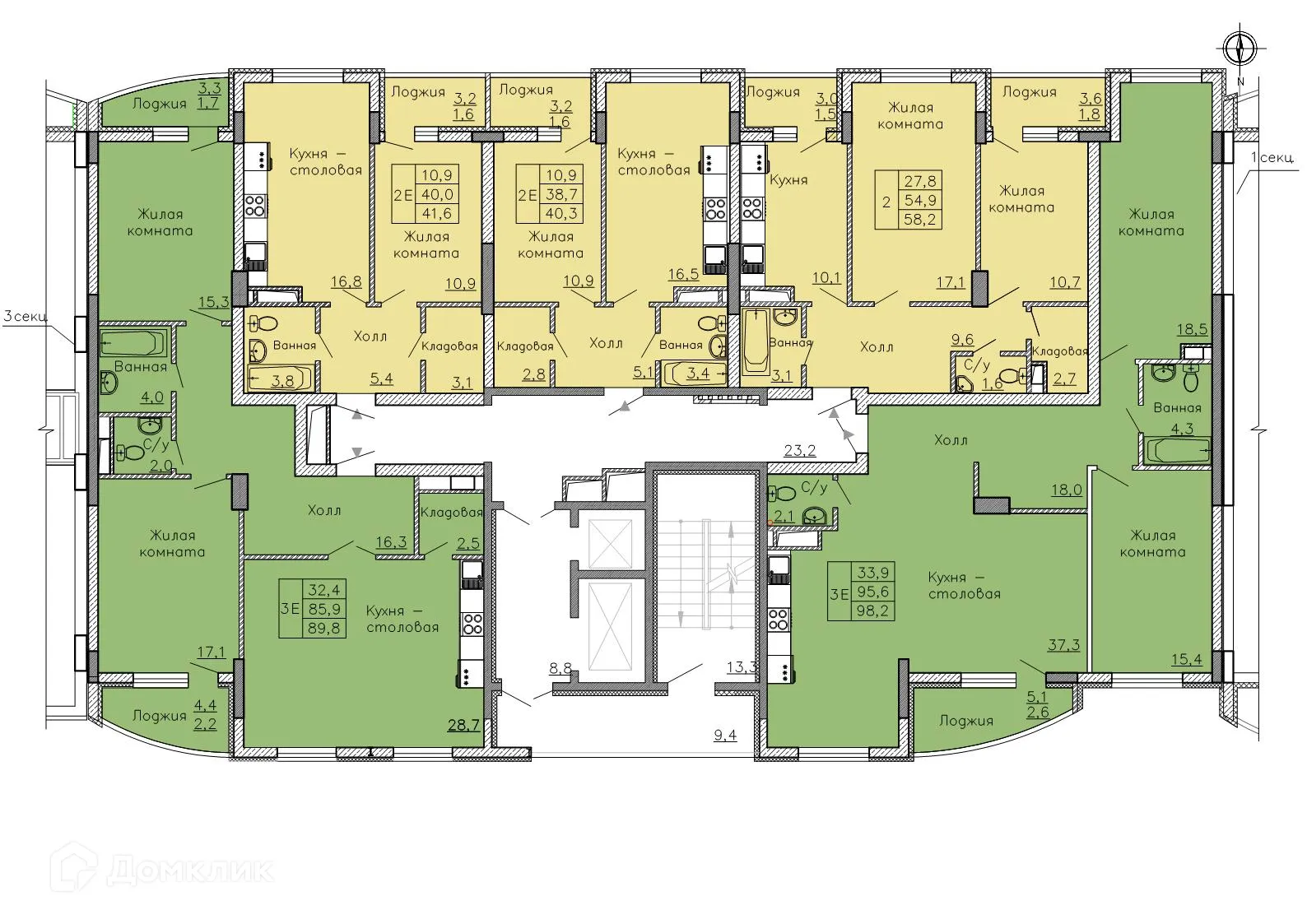
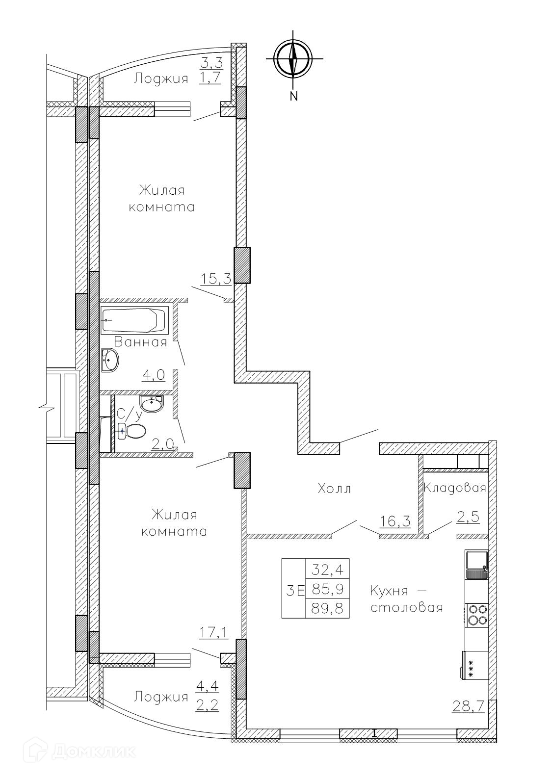
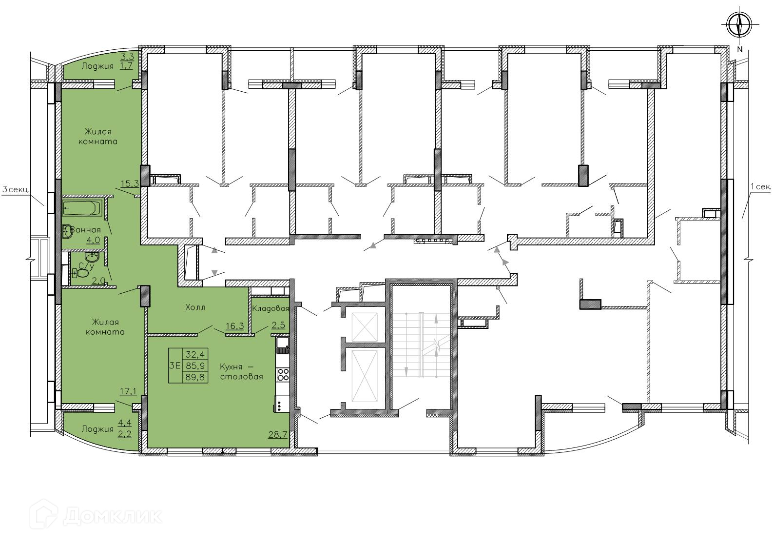
Квартира расположена на 2-м этаже 19-этажного дома.
Отличный вариант для семьи.
Продуманная планировка
- ✅ Общая площадь: 89.8 м².
- ✅ Уютная жилая площадь: 32.4 м².
- ✅ Кухня: 28.7 м² — эргономичное пространство.
Преимущества квартиры
- 🔧 Вариант отделки: предварительная отделка. Готовая база для вашего интерьера.
- 🌞 Увеличенные оконные проемы наполняют помещения природным светом.
- 🌿 Класс жилья: Эконом — благоустроенная территория.
Финансы и ипотека
- 💳 Ипотека от 66 168 руб/мес.
- 🏦 Подходит под семейную и IT ипотеку.
- 🤝 Покупка напрямую от застройщика гарантирует надежность.
Чтобы забронировать эту квартиру бесплатно и зафиксировать цену — свяжитесь с нами прямо сейчас! 📞
Характеристики новостройки в ЖК "Боровое"
- Номер квартиры: 294
- Вариант отделки: предварительная отделка
- Общая площадь: 89.8 м²
- Жилая площадь: 32.4 м²
- Площадь кухни: 28.7 м²
- Класс жилья: Эконом
- Количество комнат: 3-комнатная квартира
- Этаж: 2
- Этажность дома: 19
Полезная информация о ЖК "Боровое"