Воронеж, Кольцовская улица, 15
Площадь
Жилая
Кухня
Отделка
Класс жилья
Комнат
Номер кв.
Этаж
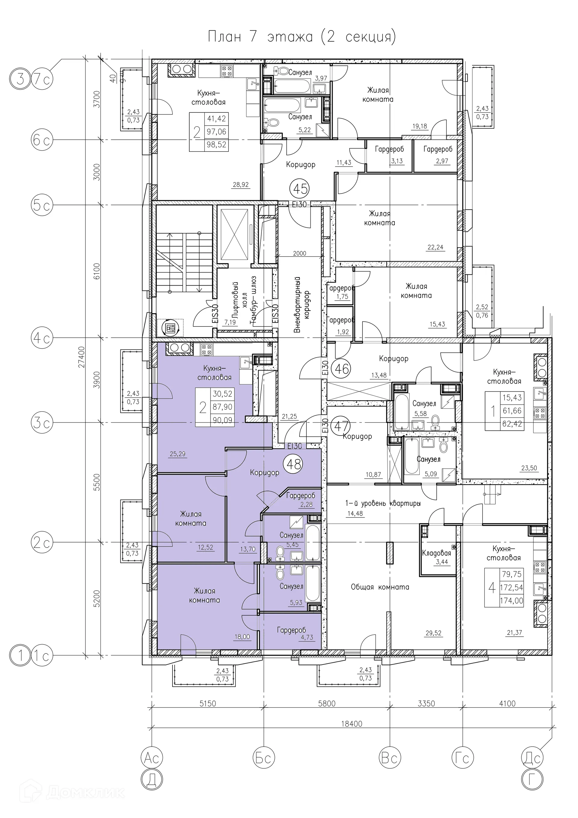
Доступна к покупке 2-комнатная квартира в новом жилом комплексе "ЖК К15" 🏢. Квартира расположена на 3-м этаже 10-этажного дома. Отличный вариант для семьи.
Чтобы забронировать эту квартиру бесплатно и проверить актуальную стоимость — позвоните нам прямо сейчас! 📞
Новый жилой комплекс «К15» от Строительной компании «Акцент» расположен по адресу: г. Воронеж, по ул. Кольцовская. Новый жилой комплекс «К15» от Строительной компании «Акцент» расположен по адресу: г. Воронеж, по ул. Кольцовская.
Срок сдачи: 4 кв. 2026 г.
Срок сдачи: 4 кв. 2026 г.
Площади квартир
Этажность
Класс жилья
Корпусов
Стены