Описание квартиры в "ЖК "Боровое""
Предлагается 1-комнатная квартира в новом жилом комплексе "ЖК "Боровое"" 🏢.
Квартира расположена на 6-м этаже 19-этажного дома.
Отличный вариант для семьи.
Продуманная планировка
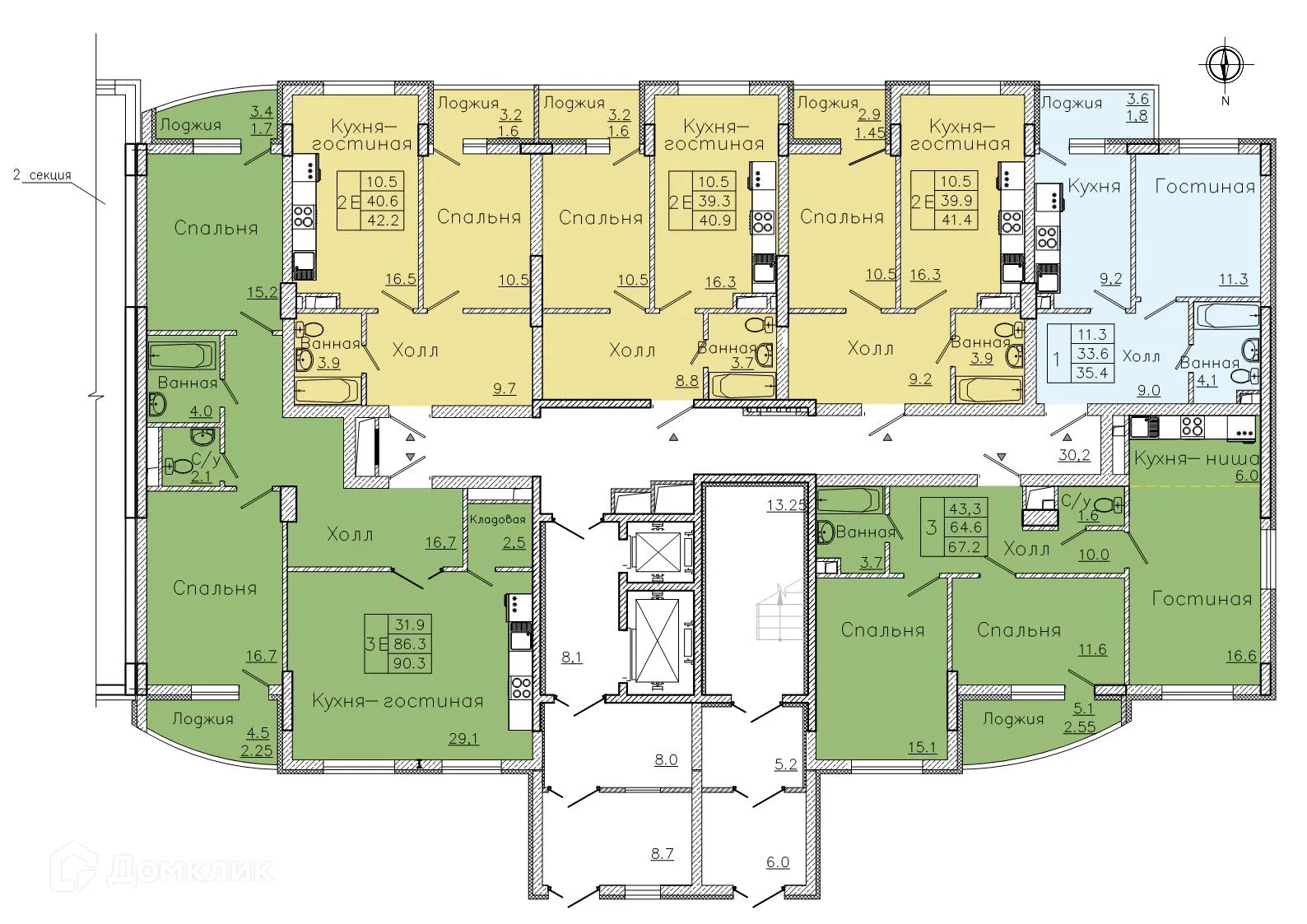
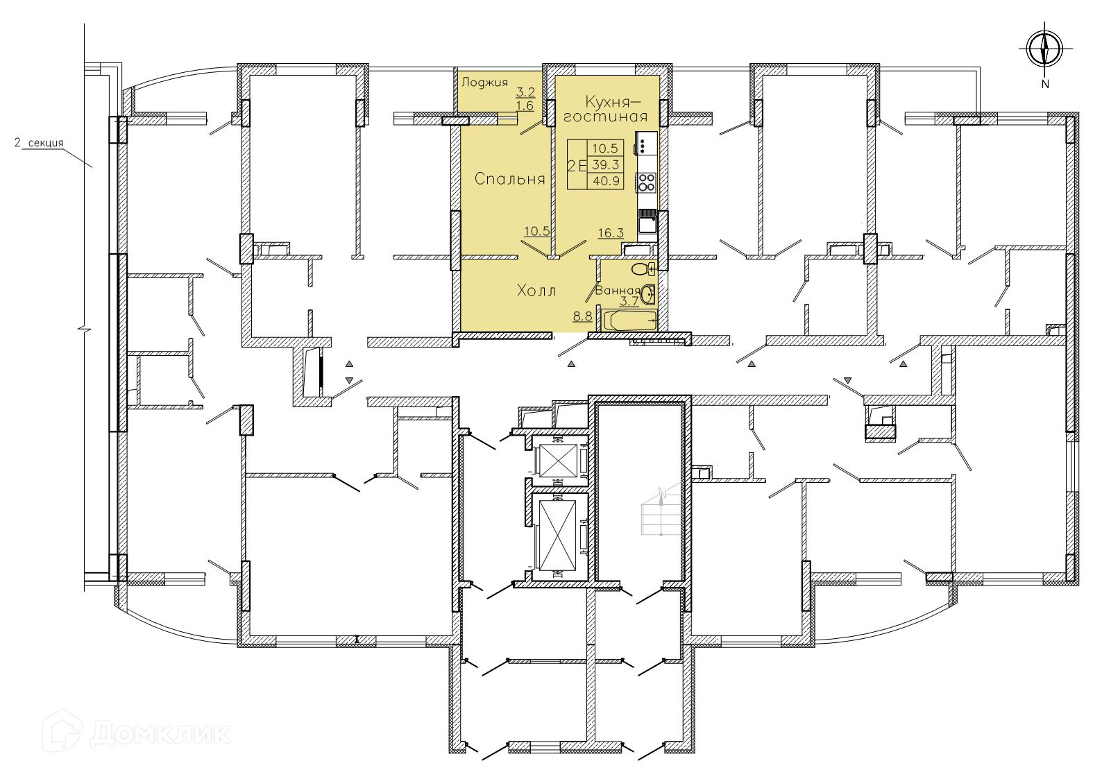
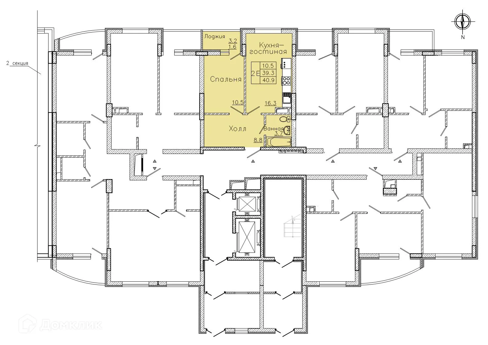
- ✅ Общая площадь: 40.9 м².
- ✅ Светлая жилая площадь: 10.5 м².
- ✅ Кухня: 16 м² — место для кулинарных шедевров.
Преимущества квартиры
- 🔧 Вариант отделки: предварительная отделка. Это позволит вам сразу приступить к ремонту.
- 🌞 Большие окна наполняют помещения природным светом.
- 🌿 Класс жилья: Эконом — современные технологии.
Финансы и ипотека
- 💳 Ипотека от 32 721 руб/мес.
- 🏦 Подходит под семейную и IT ипотеку.
- 🤝 Эскроу-счета гарантирует надежность.
Для бесплатного бронирования и зафиксировать цену — позвоните нам прямо сейчас! 📞
Характеристики новостройки в ЖК "Боровое"
- Номер квартиры: 412
- Вариант отделки: предварительная отделка
- Общая площадь: 40.9 м²
- Жилая площадь: 10.5 м²
- Площадь кухни: 16 м²
- Класс жилья: Эконом
- Количество комнат: 1-комнатная квартира
- Этаж: 6
- Этажность дома: 19
Полезная информация о ЖК "Боровое"