Обзор квартиры в "ЖК "Боровое""
В продаже 3-комнатная квартира в современном жилом комплексе "ЖК "Боровое"" 🏢.
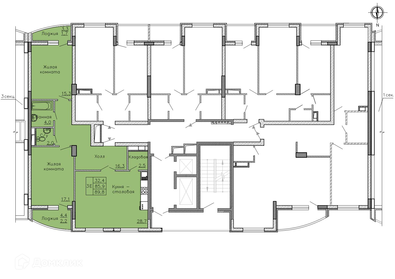
Квартира расположена на 10-м этаже 19-этажного дома.
Прекрасный выбор для комфортной жизни.
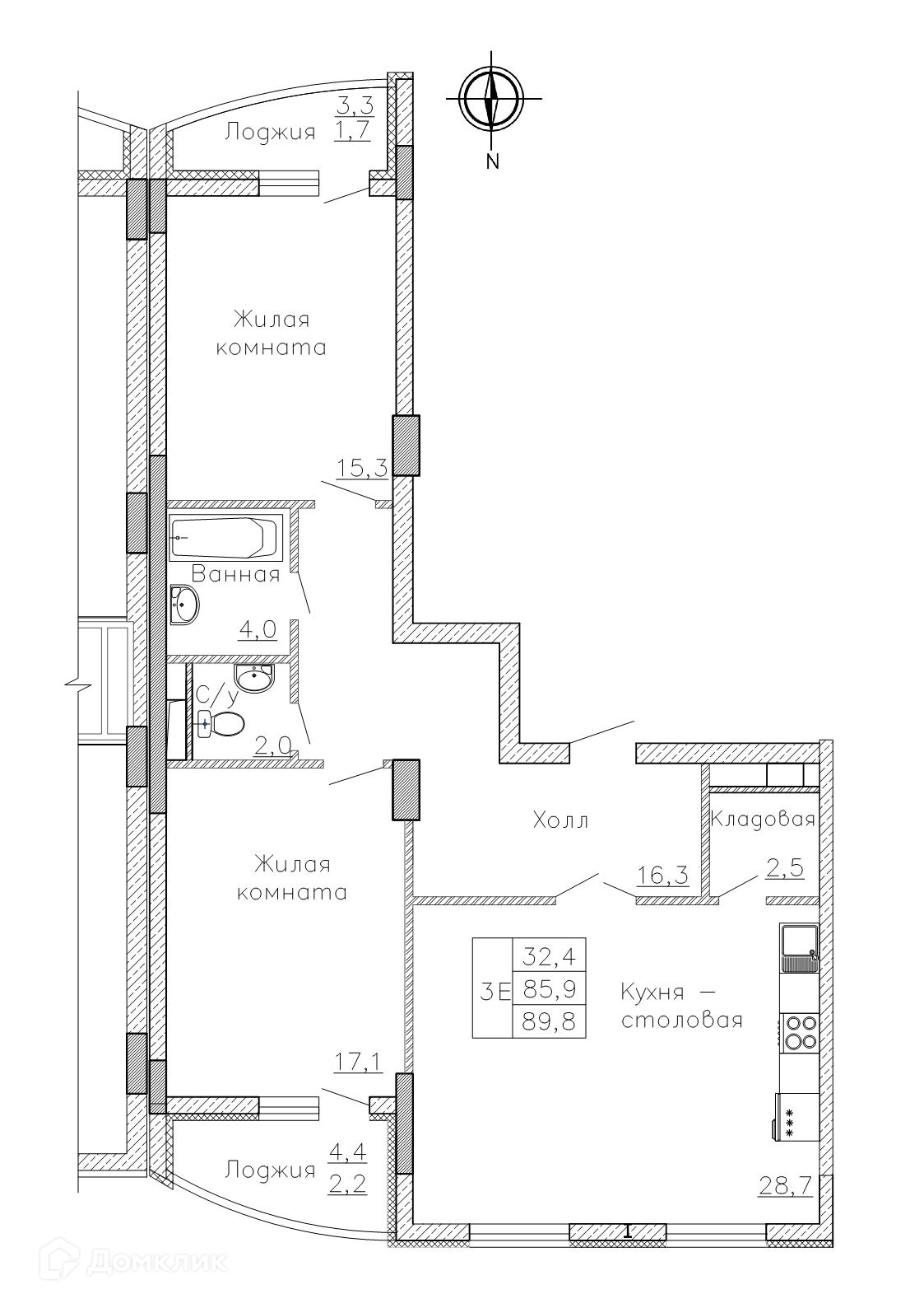
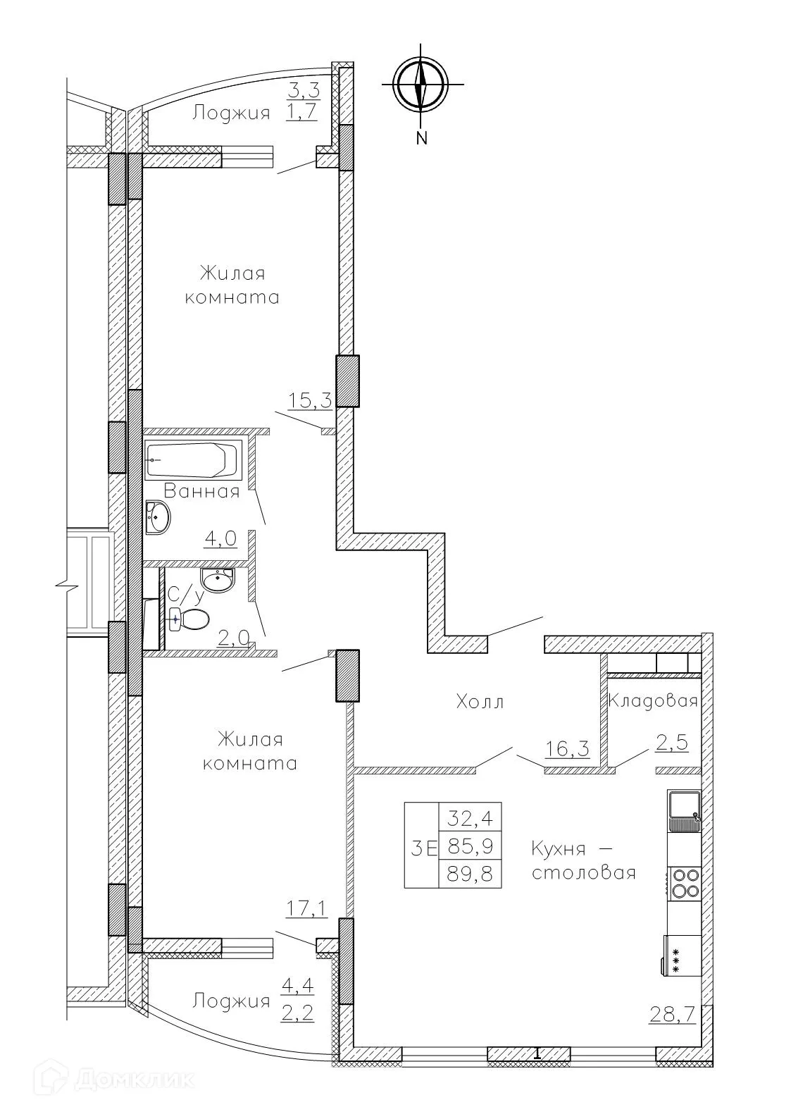
Удобная планировка
- ✅ Общая площадь: 90.2 м².
- ✅ Просторная жилая площадь: 32.6 м².
- ✅ Кухня: 28.7 м² — место для кулинарных шедевров.
Преимущества квартиры
- 🔧 Вариант отделки: предварительная отделка. Это позволит вам сразу приступить к ремонту.
- 🌞 Панорамное остекление наполняют помещения естественным светом.
- 🌿 Класс жилья: Эконом — высокое качество строительства.
Выгодные условия покупки
- 💳 Ипотека от 66 389 руб/мес.
- 🏦 Подходит под семейную и IT ипотеку.
- 🤝 Эскроу-счета гарантирует спокойствие.
Чтобы узнать подробности и зафиксировать цену — позвоните нам прямо сейчас! 📞
Характеристики новостройки в ЖК "Боровое"
- Номер квартиры: 433
- Вариант отделки: предварительная отделка
- Общая площадь: 90.2 м²
- Жилая площадь: 32.6 м²
- Площадь кухни: 28.7 м²
- Класс жилья: Эконом
- Количество комнат: 3-комнатная квартира
- Этаж: 10
- Этажность дома: 19
Полезная информация о ЖК "Боровое"