Описание квартиры в "ЖК "Боровое""
Предлагается 1-комнатная квартира в востребованном жилом комплексе "ЖК "Боровое"" 🏢.
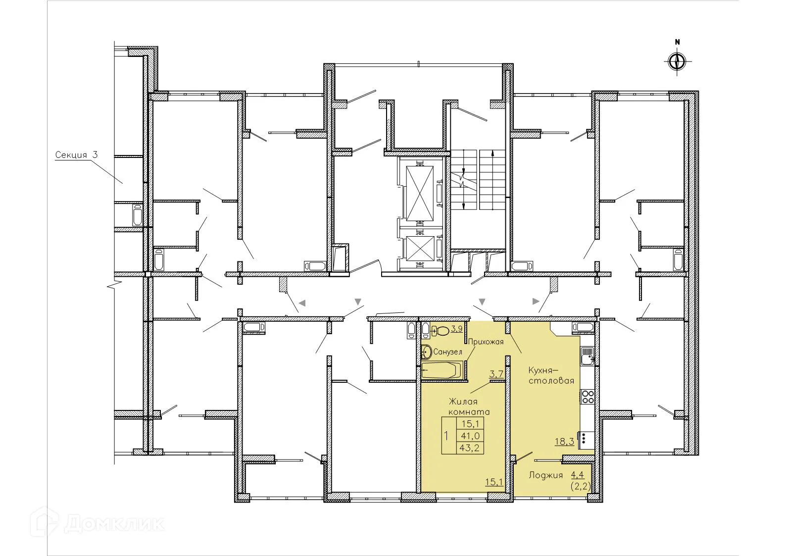
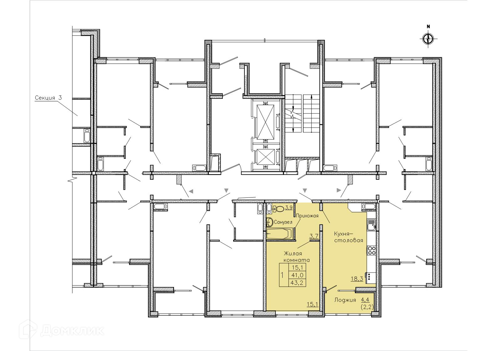
Квартира расположена на 15-м этаже 19-этажного дома.
Отличный вариант для инвестиций.
Функциональная планировка
- ✅ Общая площадь: 43.2 м².
- ✅ Просторная жилая площадь: 15.1 м².
- ✅ Кухня: 18.3 м² — эргономичное пространство.
Особенности квартиры
- 🔧 Вариант отделки: предварительная отделка. Это позволит вам сразу приступить к ремонту.
- 🌞 Увеличенные оконные проемы наполняют помещения естественным светом.
- 🌿 Класс жилья: Эконом — современные технологии.
Финансы и ипотека
- 💳 Ипотека от 33 838 руб/мес.
- 🏦 Доступны льготные программы господдержки.
- 🤝 Эскроу-счета гарантирует спокойствие.
Для бесплатного бронирования и проверить актуальную стоимость — свяжитесь с нами прямо сейчас! 📞
Характеристики новостройки в ЖК "Боровое"
- Номер квартиры: 57
- Вариант отделки: предварительная отделка
- Общая площадь: 43.2 м²
- Жилая площадь: 15.1 м²
- Площадь кухни: 18.3 м²
- Класс жилья: Эконом
- Количество комнат: 1-комнатная квартира
- Этаж: 15
- Этажность дома: 19
Полезная информация о ЖК "Боровое"