Описание квартиры в "ЖК "Боровое""
Предлагается 3-комнатная квартира в востребованном жилом комплексе "ЖК "Боровое"" 🏢.
Квартира расположена на 1-м этаже 19-этажного дома.
Прекрасный выбор для инвестиций.
Удобная планировка
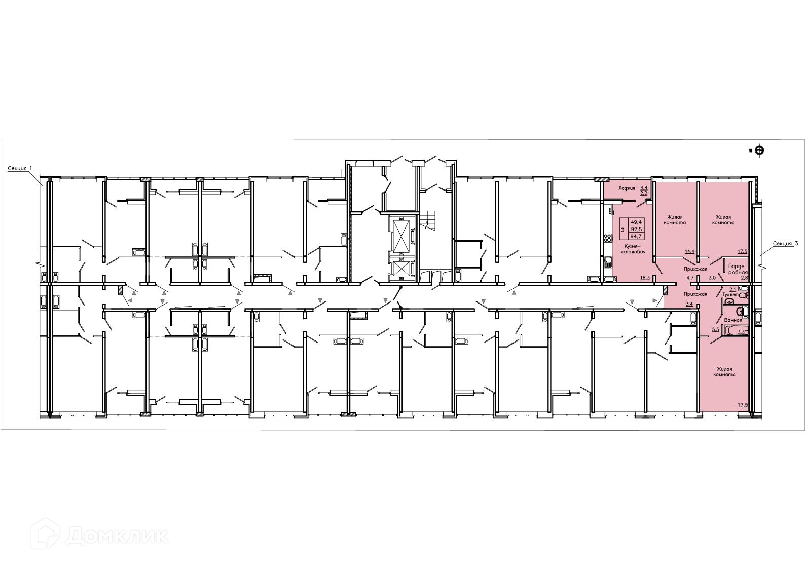
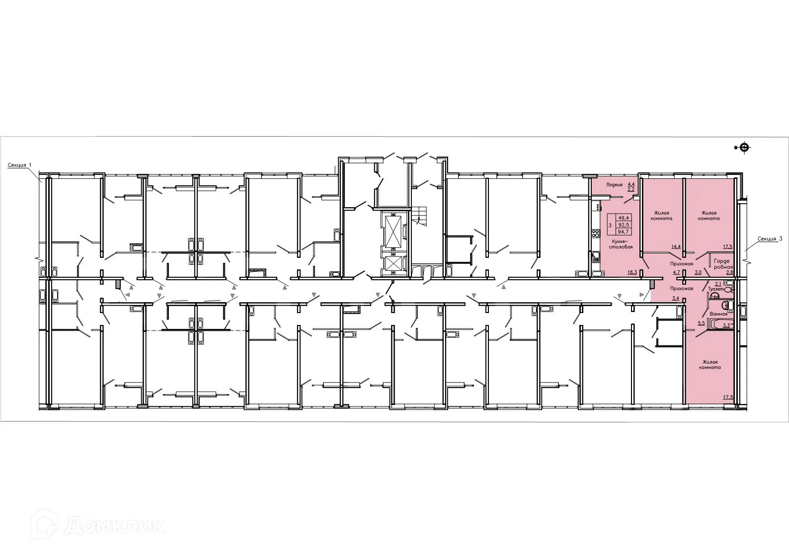
- ✅ Общая площадь: 94.7 м².
- ✅ Уютная жилая площадь: 49.4 м².
- ✅ Кухня: 18.3 м² — идеальна для семейных ужинов.
Преимущества квартиры
- 🔧 Вариант отделки: предварительная отделка. Это позволит вам сразу приступить к ремонту.
- 🌞 Большие окна наполняют помещения естественным светом.
- 🌿 Класс жилья: Эконом — современные технологии.
Финансы и ипотека
- 💳 Ипотека от 67 511 руб/мес.
- 🏦 Доступны льготные программы господдержки.
- 🤝 Покупка напрямую от застройщика гарантирует спокойствие.
Чтобы забронировать эту квартиру бесплатно и проверить актуальную стоимость — позвоните нам прямо сейчас! 📞
Характеристики новостройки в ЖК "Боровое"
- Номер квартиры: 177
- Вариант отделки: предварительная отделка
- Общая площадь: 94.7 м²
- Жилая площадь: 49.4 м²
- Площадь кухни: 18.3 м²
- Класс жилья: Эконом
- Количество комнат: 3-комнатная квартира
- Этаж: 1
- Этажность дома: 19
Полезная информация о ЖК "Боровое"