Воронеж, Жилой комплекс "Никитин"
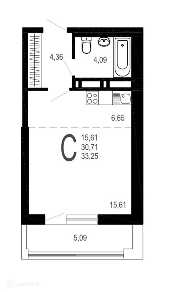
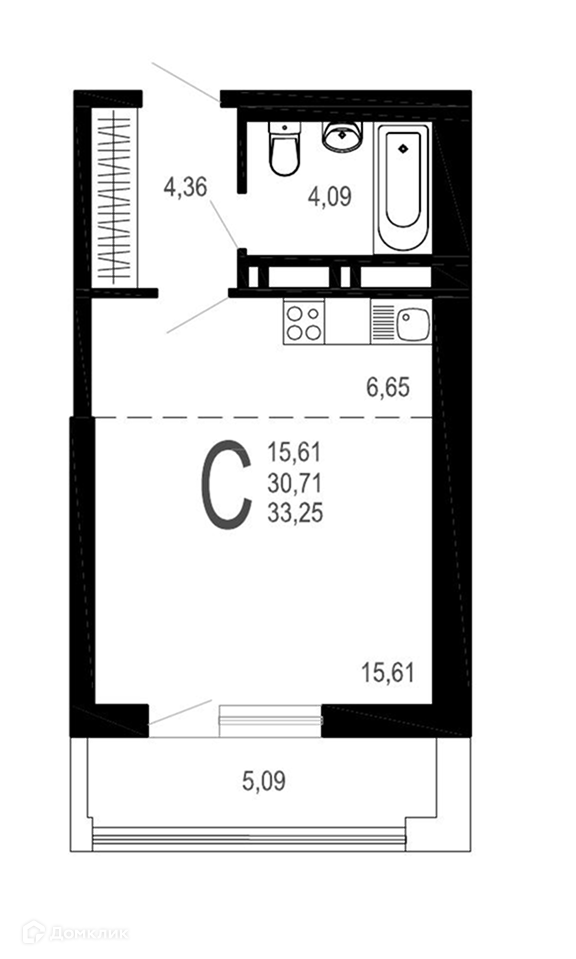
Площадь
Жилая
Кухня
Отделка
Класс жилья
Номер кв.
Этаж
В продаже Студия в востребованном жилом комплексе "ЖК Никитин" 🏢. Квартира расположена на 9-м этаже 32-этажного дома. Отличный вариант для семьи.
Для бесплатного бронирования и зафиксировать цену — позвоните нам прямо сейчас! 📞
ЖК Никитин — один из самых интересных жилых комплексов Ленинского района. Жилой комплекс включает в себя 3 секции, в том числе 32-этажный дом — самый высокий в своем районе. Благодаря большой этажности и удачной локации в 3 минутах от Цирка из квартир открываются потрясающие виды на город.
Срок сдачи: 4 кв. 2027 г.
Срок сдачи: 4 кв. 2027 г.
Площади квартир
Этажность
Класс жилья
Корпусов
Стены