Обзор квартиры в "ЖК Дом у Ротонды"
В продаже 1-комнатная квартира в новом жилом комплексе "ЖК Дом у Ротонды" 🏢.
Квартира расположена на 17-м этаже 29-этажного дома.
Отличный вариант для инвестиций.
Продуманная планировка
- ✅ Общая площадь: 47.59 м².
- ✅ Светлая жилая площадь: 14.52 м².
- ✅ Кухня: 20.42 м² — эргономичное пространство.
Преимущества квартиры
- 🔧 Вариант отделки: без ремонта. Это позволит вам сразу приступить к ремонту.
- 🌞 Большие окна наполняют помещения естественным светом.
- 🌿 Класс жилья: Комфорт — благоустроенная территория.
Финансы и ипотека
- 💳 Ипотека от 54 831 руб/мес.
- 🏦 Подходит под семейную и IT ипотеку.
- 🤝 Эскроу-счета гарантирует спокойствие.
Чтобы узнать подробности и проверить актуальную стоимость — свяжитесь с нами прямо сейчас! 📞
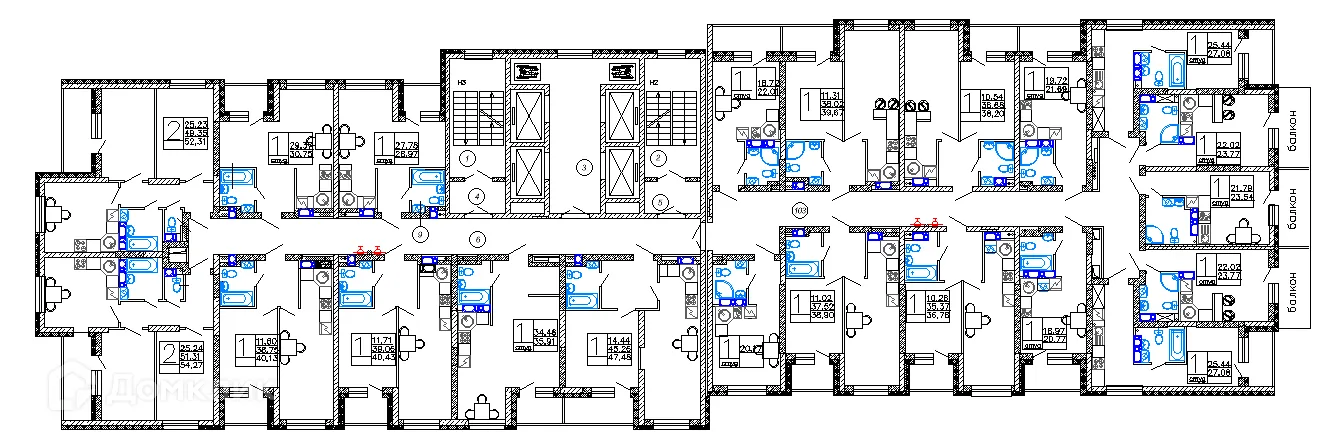
Характеристики новостройки в ЖК Дом у Ротонды
- Номер квартиры: 329
- Вариант отделки: без ремонта
- Общая площадь: 47.59 м²
- Жилая площадь: 14.52 м²
- Площадь кухни: 20.42 м²
- Класс жилья: Комфорт
- Количество комнат: 1-комнатная квартира
- Этаж: 17
- Этажность дома: 29
Полезная информация о ЖК Дом у Ротонды
ЖК «Дом у Ротонды» современный и комфортный жилой комплекс, который сочетает в себе все преимущества городской и природной жизни.