Воронеж, Жилой комплекс "Ритм"
Площадь
Жилая
Кухня
Отделка
Класс жилья
Комнат
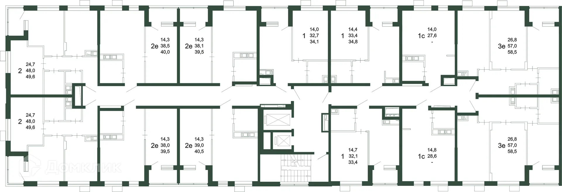
Номер кв.
Этаж
Доступна к покупке 1-комнатная квартира в новом жилом комплексе "ЖК Ритм" 🏢
Квартира расположена на 10-м этаже 14-этажного дома.
Отличный вариант для семьи.
Функциональная планировка: 📐
✅ Общая площадь: 34.9 м².
✅ Светлая жилая площадь: 14.4 м².
✅ Кухня: - м² — место для кулинарных шедевров.
Особенности квартиры: ✨
🔧 Вариант отделки: без ремонта. Минимум грязных работ.
🌞 Увеличенные оконные проемы наполняют помещения природным светом.
🌿 Класс жилья: Комфорт — высокое качество строительства.
Выгодные условия покупки: 💰
💳 Ипотека от 32 381 руб/мес.
🏦 Доступны льготные программы господдержки.
🤝 Покупка напрямую от застройщика гарантирует надежность.
Чтобы забронировать эту квартиру бесплатно и проверить актуальную стоимость — позвоните нам прямо сейчас! 📞
Параметры новостройки в ЖК Ритм:
• Номер квартиры - 116
• Вариант отделки - без ремонта
• Площадь - 34.9 м²
• Жилая Жилая - 14.4 м²
• Площадь кухни - - м²
• Класс жилья - Комфорт
• Комнат - 1-комнатная квартира
• Этаж - 10
• Дом - 14-этажный
Полезная информация о ЖК Ритм
ЖК «РИТМ» — ДОСТУПНАЯ И ВЫГОДНАЯ ИНВЕСТИЦИЯ В ВАШЕ БУДУЩЕЕ
Жилой комплекс «Ритм» по ул. Бульвар Содружества уч. 6 — часть масштабного проекта развития территории воронежского левобережья — микрорайона «Ключи», который займет 28,6 га недалеко от въезда в город по тамбовскому направлению.
Здесь строится инновационный красивый мини-город. Он насыщен социальной и коммерческой инфраструктурой и обеспечен новейшими коммуникациями. Комплекс состоит не только из качественных домов. Решения по благоустройству стимулируют ведение активного здорового образа жизни. Продуманы возможности для взаимодействия людей, их творческой самореализации, выстраивания добрососедских связей и формирования современного приятного комьюнити. И все это на благоприятном экологическом фоне. Это действительно новый шаг в создании привлекательной среды для жизни в современном ритме! Жить, не ограничивая себя и свою семью, — разве не об этом вы мечтали? Вас ждет инновационное пространство, где вы будете вести свою насыщенную и интересную жизнь в выбранном вами ритме.
Подземный паркинг на -1 этаже вместимостью на 114 машино-места, в том числе семейные парковки на два автомобиля освобождает двор от машин — там гораздо приятнее гулять с детьми или заниматься спортом. Жители смогут выходить к своему автомобилю в теплый паркинг прямо из лифта — нет беспокойства из-за погодных условий или за сохранность транспортного средства. Ваши гости тоже не останутся без парковки — на придомовой территории организовано - 131 место и вне придомовой территории - 213 мест.
Для абсолютного комфорта на -1 этаже в каждой секции расположены кладовые помещение площадью от 2,10 до 5,0 кв.м., где можно хранить все что угодно — велосипеды, санки, лыжи и прочие вещи. Они больше не будут занимать весь балкон. Там гораздо приятнее пить кофе и любоваться видом из окна.
ИНФРАСТРУКТУРА и ПРЕИМУЩЕСТВА Инновационное жилье в ЖК «Ритм» совсем рядом — 5 минут до Остужевского кольца, 20 минут до центра, рядом новая транспортная развязка. Легко добраться до работы и вузов, на концерт или в гости.
Первый цифровой квартал в городе
Дворы без машин
Подземный паркинг и кладовые (в каждой секции)
Сервисная Управляющая Компания (Smile)
Новая инфраструктура района и коммуникаций
Рядом с вами:
новая уже действующая школа - 3 минут (просто перейти дорогу)
новый детский сад (проект на стадии разработки, ориентировочный срок сдачи конец 2026 года) - 5 минут (просто перейти дорогу)
5 минут от центральной площади событий и прогулочных аллей
стадион и спортивные площадки
поликлиника (проект на стадии разработки)
магазины
аптеки
детские площадки
Срок сдачи: 2 кв. 2026 г.
Срок сдачи: 2 кв. 2026 г.
Площади квартир
Этажность
Отделка
Класс жилья
Количество корпусов
Тип стен