Воронеж, Жилой комплекс "Ритм"
Площадь
Жилая
Кухня
Отделка
Класс жилья
Комнат
Номер кв.
Этаж
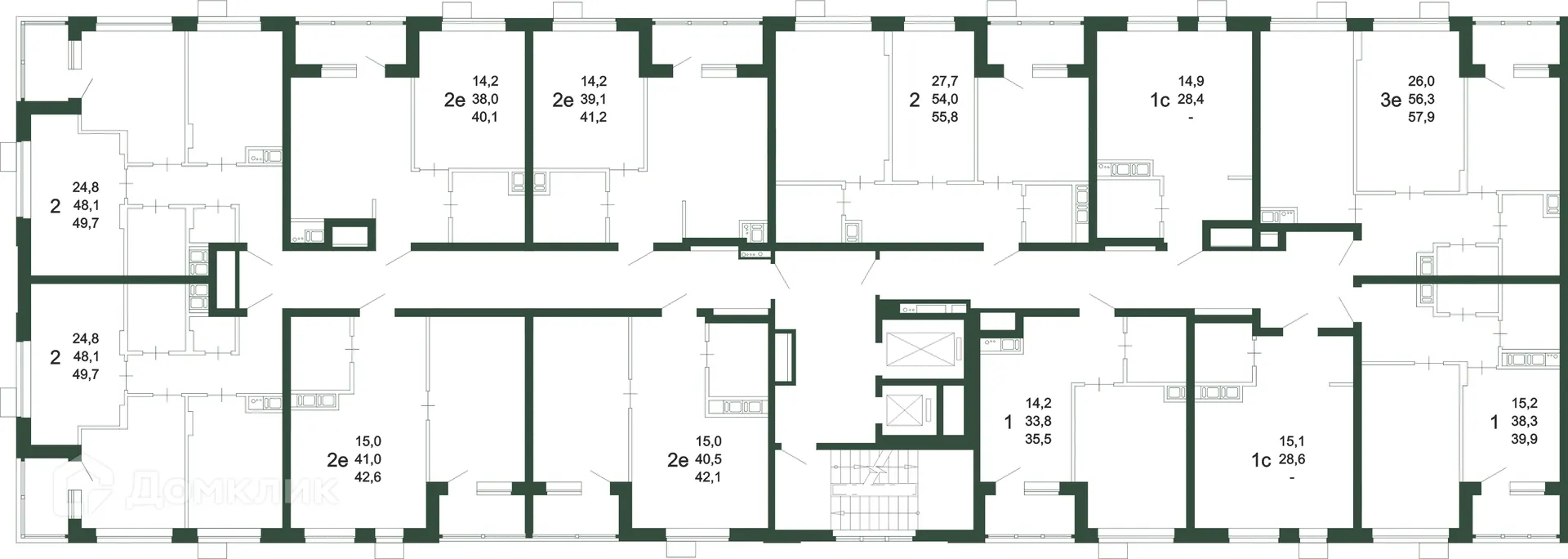
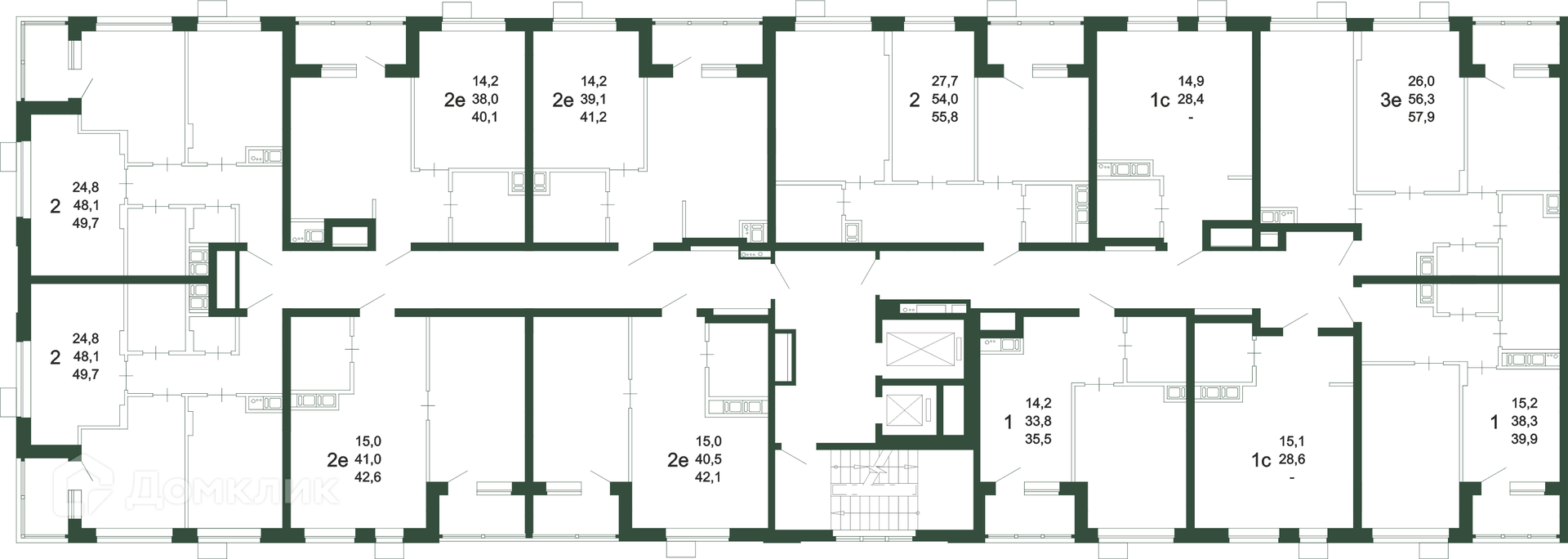
Предлагается 1-комнатная квартира в востребованном жилом комплексе "ЖК Ритм" 🏢. Квартира расположена на 9-м этаже 14-этажного дома. Отличный вариант для комфортной жизни.
Чтобы забронировать эту квартиру бесплатно и проверить актуальную стоимость — позвоните нам прямо сейчас! 📞
ЖК «РИТМ» — ДОСТУПНАЯ И ВЫГОДНАЯ ИНВЕСТИЦИЯ В ВАШЕ БУДУЩЕЕ Жилой комплекс «Ритм» по ул. Бульвар Содружества уч. 6 — часть масштабного проекта развития территории воронежского левобережья — микрорайона «Ключи», который займет 28,6 га недалеко от въезда в город по тамбовскому направлению. Здесь строится инновационный красивый мини-город. Он насыщен социальной и коммерческой инфраструктурой и обеспечен новейшими коммуникациями. Комплекс состоит не только из качественных домов. Решения по благоустройству стимулируют ведение активного здорового образа жизни. Продуманы возможности для взаимодействия людей, их творческой самореализации, выстраивания добрососедских связей и формирования современного приятного комьюнити. И все это на благоприятном экологическом фоне. Это действительно новый шаг в создании привлекательной среды для жизни в современном ритме! Жить, не ограничивая себя и свою семью, — разве не об этом вы мечтали? Вас ждет инновационное пространство, где вы будете вести свою насыщенную и интересную жизнь в выбранном вами ритме. Подземный паркинг на -1 этаже вместимостью на 114 машино-места, в том числе семейные парковки на два автомобиля освобождает двор от машин — там гораздо приятнее гулять с детьми или заниматься спортом. Жители смогут выходить к своему автомобилю в теплый паркинг прямо из лифта — нет беспокойства из-за погодных условий или за сохранность транспортного средства. Ваши гости тоже не останутся без парковки — на придомовой территории организовано - 131 место и вне придомовой территории - 213 мест. Для абсолютного комфорта на -1 этаже в каждой секции расположены кладовые помещение площадью от 2,10 до 5,0 кв.м., где можно хранить все что угодно — велосипеды, санки, лыжи и прочие вещи. Они больше не будут занимать весь балкон. Там гораздо приятнее пить кофе и любоваться видом из окна. ИНФРАСТРУКТУРА и ПРЕИМУЩЕСТВА Инновационное жилье в ЖК «Ритм» совсем рядом — 5 минут до Остужевского кольца, 20 минут до центра, рядом новая транспортная развязка. Легко добраться до работы и вузов, на концерт или в гости. Первый цифровой квартал в городе Дворы без машин Подземный паркинг и кладовые (в каждой секции) Сервисная Управляющая Компания (Smile) Новая инфраструктура района и коммуникаций Рядом с вами: новая уже действующая школа - 3 минут (просто перейти дорогу) новый детский сад (проект на стадии разработки, ориентировочный срок сдачи конец 2026 года) - 5 минут (просто перейти дорогу) 5 минут от центральной площади событий и прогулочных аллей стадион и спортивные площадки поликлиника (проект на стадии разработки) магазины аптеки детские площадки
Срок сдачи: 2 кв. 2026 г.
Срок сдачи: 2 кв. 2026 г.
Площади квартир
Этажность
Класс жилья
Корпусов
Стены