Воронеж, улица Фёдора Тютчева, 105
Площадь
Жилая
Кухня
Отделка
Класс жилья
Комнат
Номер кв.
Этаж
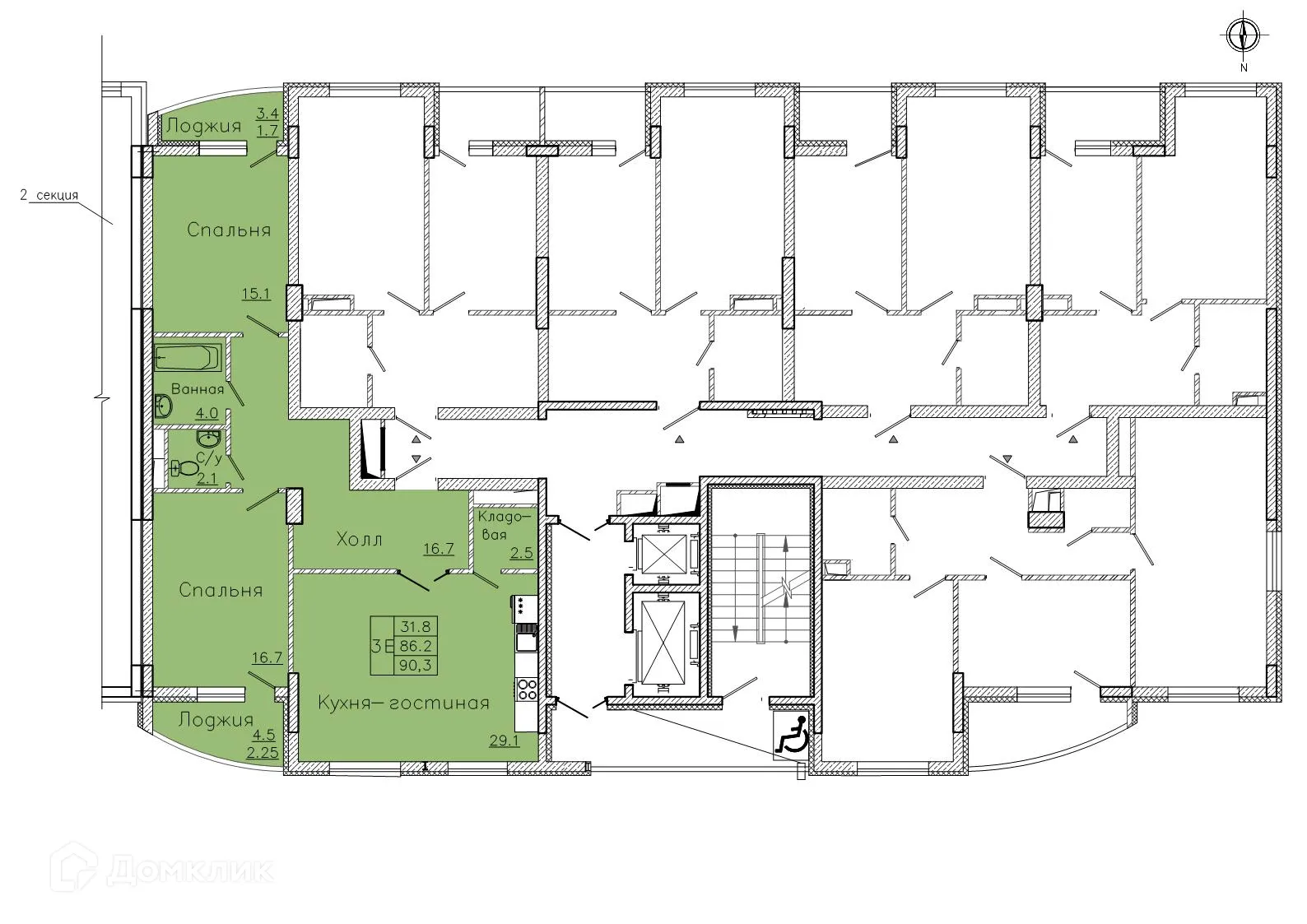
В продаже 3-комнатная квартира в современном жилом комплексе "ЖК "Боровое"" 🏢
Квартира расположена на 5-м этаже 19-этажного дома.
Прекрасный выбор для семьи.
Удобная планировка: 📐
✅ Общая площадь: 90.2 м².
✅ Светлая жилая площадь: 31.8 м².
✅ Кухня: 29 м² — место для кулинарных шедевров.
Преимущества квартиры: ✨
🔧 Вариант отделки: без ремонта. Минимум грязных работ.
🌞 Панорамное остекление наполняют помещения естественным светом.
🌿 Класс жилья: Эконом — высокое качество строительства.
Финансы и ипотека: 💰
💳 Ипотека от 58 457 руб/мес.
🏦 Доступны льготные программы господдержки.
🤝 Покупка напрямую от застройщика гарантирует спокойствие.
Чтобы забронировать эту квартиру бесплатно и зафиксировать цену — свяжитесь с нами прямо сейчас! 📞
Параметры новостройки в ЖК "Боровое":
• Номер квартиры - 309
• Вариант отделки - без ремонта
• Площадь - 90.2 м²
• Жилая Жилая - 31.8 м²
• Площадь кухни - 29 м²
• Класс жилья - Эконом
• Комнат - 3-комнатная квартира
• Этаж - 5
• Дом - 19-этажный
Полезная информация о ЖК "Боровое"
Срок сдачи: 4 кв. 2016 г.
Срок сдачи: 4 кв. 2016 г.
Площади квартир
Тип жилья
Этажность
Отделка
Класс жилья
Количество корпусов
Тип стен