Воронеж, улица Фёдора Тютчева, 105
Площадь
Жилая
Кухня
Отделка
Класс жилья
Комнат
Номер кв.
Этаж
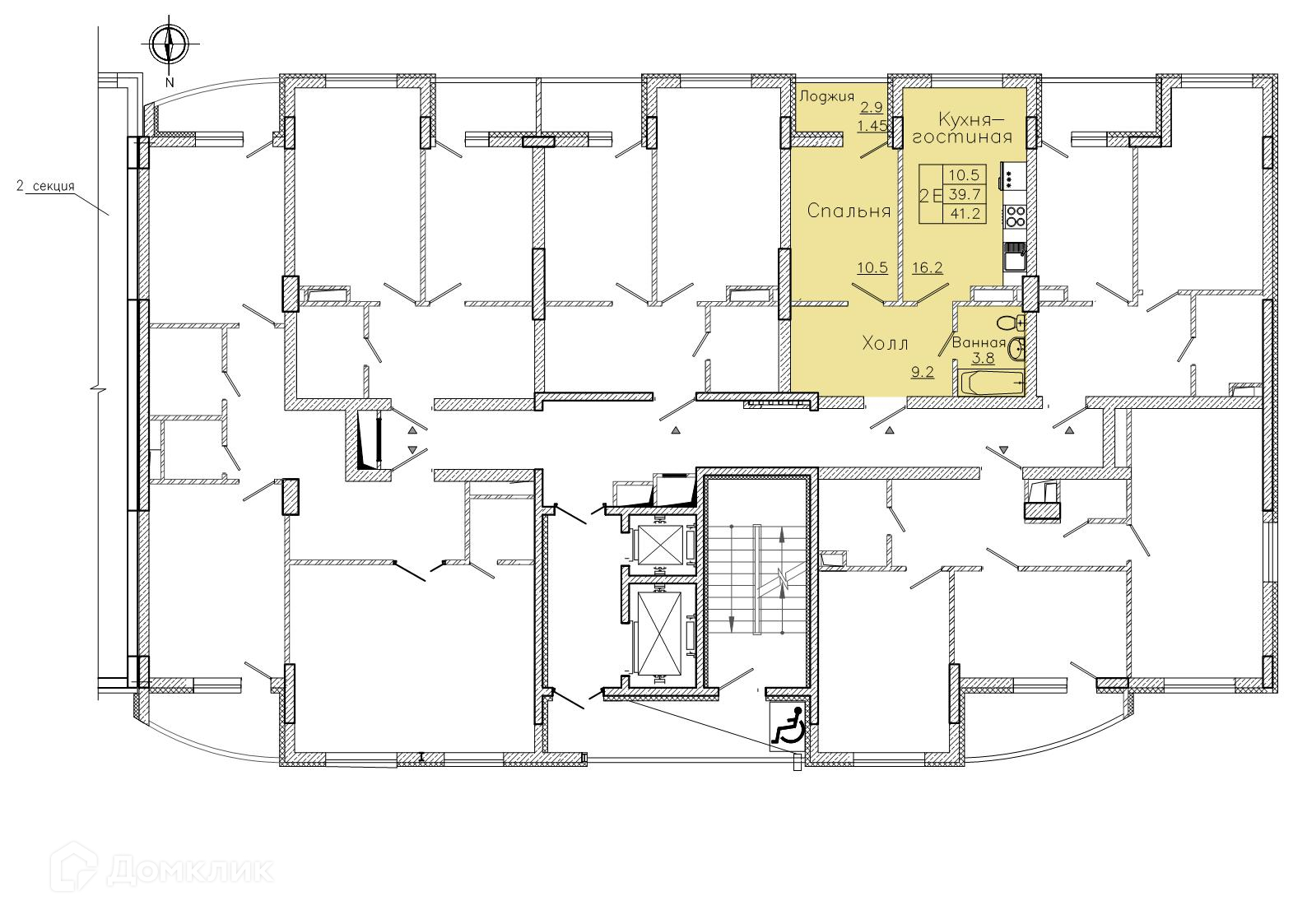
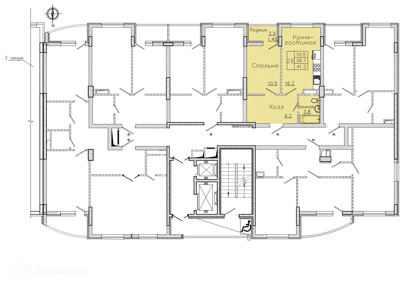
Продается 1-комнатная квартира в востребованном жилом комплексе "ЖК "Боровое"" 🏢
Квартира расположена на 4-м этаже 19-этажного дома.
Прекрасный выбор для комфортной жизни.
Функциональная планировка: 📐
✅ Общая площадь: 41 м².
✅ Уютная жилая площадь: 10.5 м².
✅ Кухня: 16 м² — идеальна для семейных ужинов.
Особенности квартиры: ✨
🔧 Вариант отделки: без ремонта. Готовая база для вашего интерьера.
🌞 Панорамное остекление наполняют помещения естественным светом.
🌿 Класс жилья: Эконом — современные технологии.
Выгодные условия покупки: 💰
💳 Ипотека от 30 610 руб/мес.
🏦 Доступны льготные программы господдержки.
🤝 Покупка напрямую от застройщика гарантирует спокойствие.
Чтобы забронировать эту квартиру бесплатно и зафиксировать цену — позвоните нам прямо сейчас! 📞
Параметры новостройки в ЖК "Боровое":
• Номер квартиры - 400
• Вариант отделки - без ремонта
• Площадь - 41 м²
• Жилая Жилая - 10.5 м²
• Площадь кухни - 16 м²
• Класс жилья - Эконом
• Комнат - 1-комнатная квартира
• Этаж - 4
• Дом - 19-этажный
Полезная информация о ЖК "Боровое"
Срок сдачи: 4 кв. 2016 г.
Срок сдачи: 4 кв. 2016 г.
Площади квартир
Тип жилья
Этажность
Отделка
Класс жилья
Количество корпусов
Тип стен