Воронеж, улица Фёдора Тютчева, 105
Площадь
Жилая
Кухня
Отделка
Класс жилья
Комнат
Номер кв.
Этаж
Доступна к покупке 1-комнатная квартира в новом жилом комплексе "ЖК "Боровое"" 🏢
Квартира расположена на 11-м этаже 19-этажного дома.
Прекрасный выбор для инвестиций.
Продуманная планировка: 📐
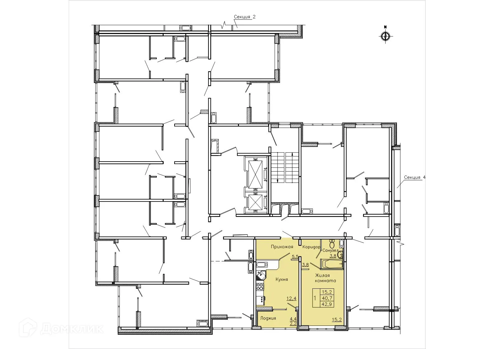
✅ Общая площадь: 42.9 м².
✅ Просторная жилая площадь: 15.2 м².
✅ Кухня: 12.4 м² — эргономичное пространство.
Преимущества квартиры: ✨
🔧 Вариант отделки: предварительная отделка. Минимум грязных работ.
🌞 Большие окна наполняют помещения природным светом.
🌿 Класс жилья: Эконом — современные технологии.
Финансы и ипотека: 💰
💳 Ипотека от 26 969 руб/мес.
🏦 Подходит под семейную и IT ипотеку.
🤝 Безопасная сделка гарантирует надежность.
Чтобы узнать подробности и проверить актуальную стоимость — позвоните нам прямо сейчас! 📞
Параметры новостройки в ЖК "Боровое":
• Номер квартиры - 129
• Вариант отделки - предварительная отделка
• Площадь - 42.9 м²
• Жилая Жилая - 15.2 м²
• Площадь кухни - 12.4 м²
• Класс жилья - Эконом
• Комнат - 1-комнатная квартира
• Этаж - 11
• Дом - 19-этажный
Полезная информация о ЖК "Боровое"
Срок сдачи: 4 кв. 2016 г.
Срок сдачи: 4 кв. 2016 г.
Площади квартир
Тип жилья
Этажность
Отделка
Класс жилья
Количество корпусов
Тип стен