Воронеж, улица Фёдора Тютчева, 105
Площадь
Жилая
Кухня
Отделка
Класс жилья
Комнат
Номер кв.
Этаж
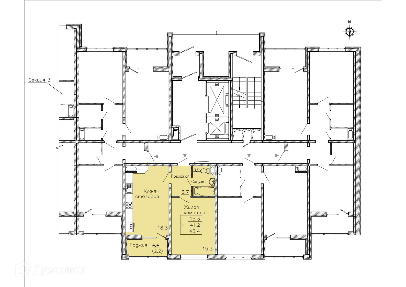
Предлагается 1-комнатная квартира в востребованном жилом комплексе "ЖК "Боровое"" 🏢
Квартира расположена на 2-м этаже 19-этажного дома.
Прекрасный выбор для семьи.
Удобная планировка: 📐
✅ Общая площадь: 43.4 м².
✅ Просторная жилая площадь: 15.3 м².
✅ Кухня: 18.3 м² — эргономичное пространство.
Особенности квартиры: ✨
🔧 Вариант отделки: без ремонта. Это позволит вам сразу приступить к ремонту.
🌞 Увеличенные оконные проемы наполняют помещения природным светом.
🌿 Класс жилья: Эконом — благоустроенная территория.
Финансы и ипотека: 💰
💳 Ипотека от 28 267 руб/мес.
🏦 Подходит под семейную и IT ипотеку.
🤝 Эскроу-счета гарантирует надежность.
Чтобы забронировать эту квартиру бесплатно и зафиксировать цену — свяжитесь с нами прямо сейчас! 📞
Параметры новостройки в ЖК "Боровое":
• Номер квартиры - 5
• Вариант отделки - без ремонта
• Площадь - 43.4 м²
• Жилая Жилая - 15.3 м²
• Площадь кухни - 18.3 м²
• Класс жилья - Эконом
• Комнат - 1-комнатная квартира
• Этаж - 2
• Дом - 19-этажный
Полезная информация о ЖК "Боровое"
Срок сдачи: 4 кв. 2016 г.
Срок сдачи: 4 кв. 2016 г.
Площади квартир
Тип жилья
Этажность
Отделка
Класс жилья
Количество корпусов
Тип стен