Воронеж, Фридриха Энгельса, 88
Площадь
Жилая
Кухня
Отделка
Класс жилья
Комнат
Номер кв.
Этаж
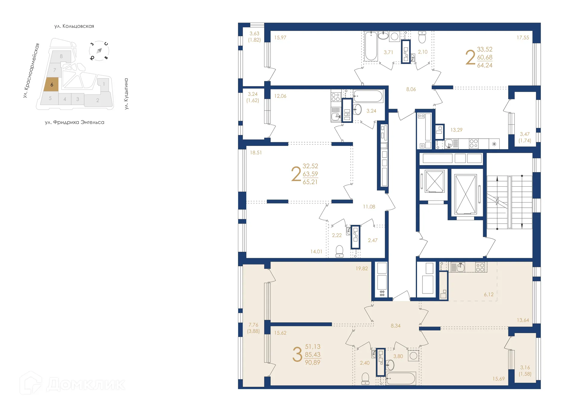
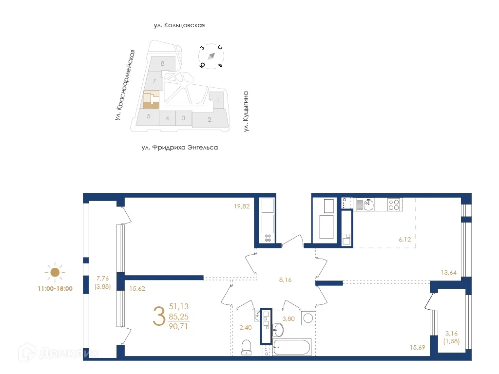
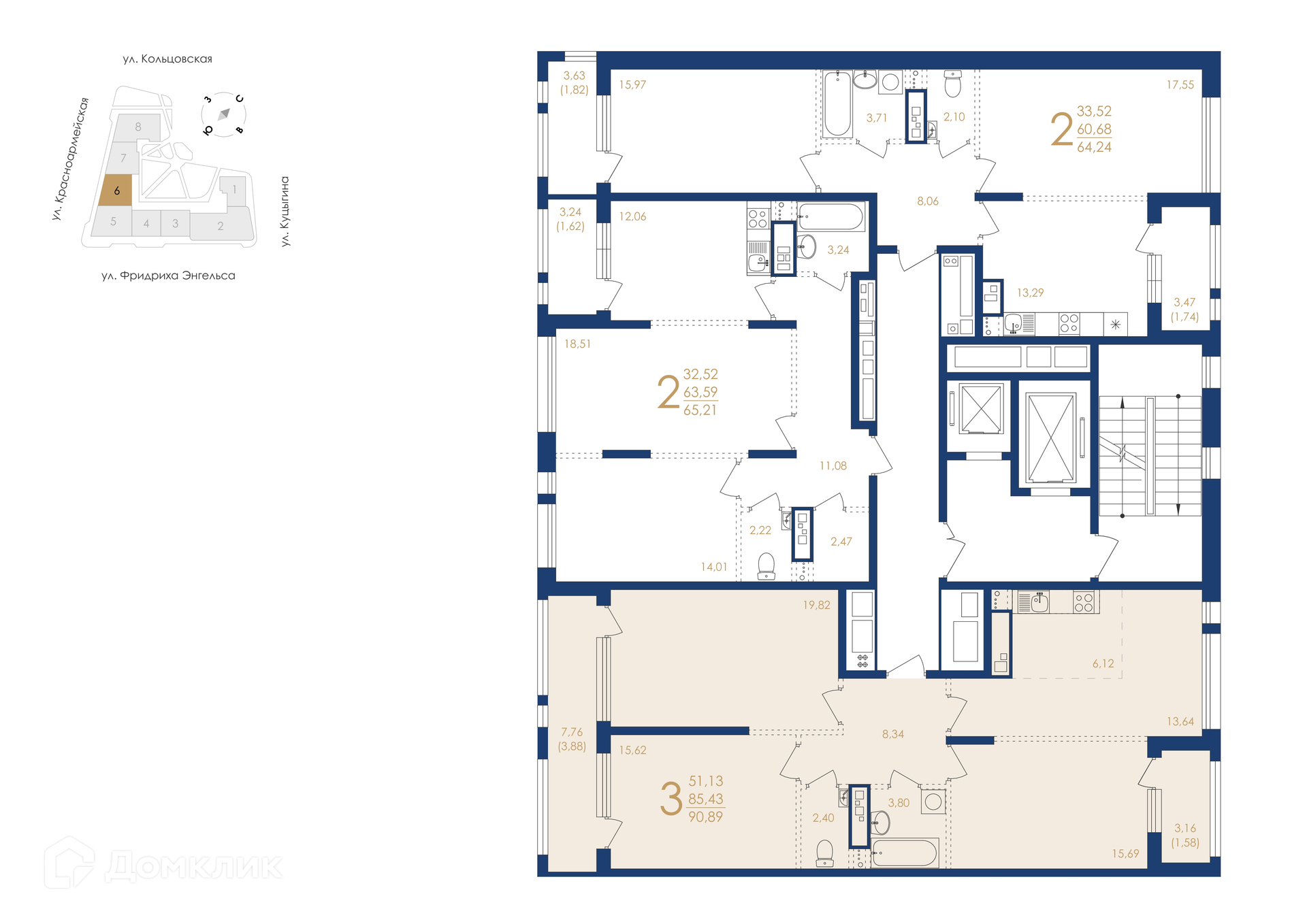
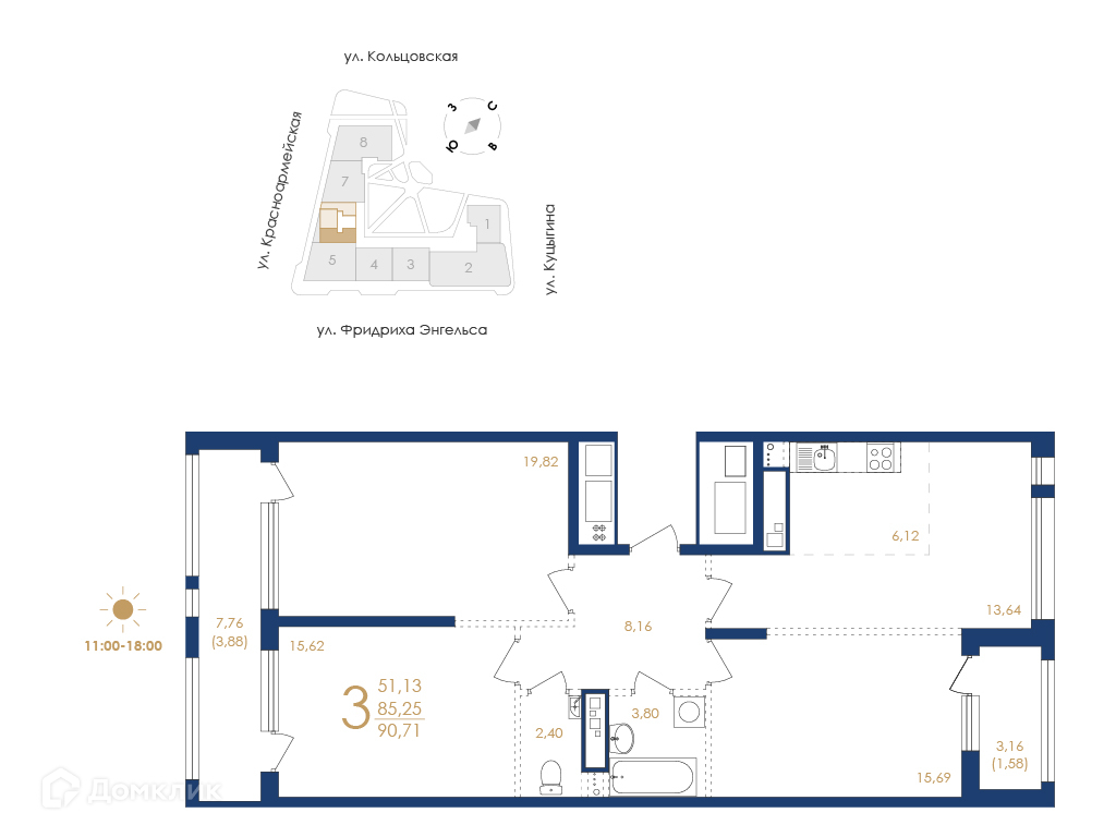
Продается 3-комнатная квартира в востребованном жилом комплексе "ЖК Жилой дом по ул. Фридриха Энгельса" 🏢
Квартира расположена на 6-м этаже 19-этажного дома.
Отличный вариант для комфортной жизни.
Функциональная планировка: 📐
✅ Общая площадь: 90.71 м².
✅ Просторная жилая площадь: 51.13 м².
✅ Кухня: 6.12 м² — эргономичное пространство.
Особенности квартиры: ✨
🔧 Вариант отделки: грубая отделка. Минимум грязных работ.
🌞 Панорамное остекление наполняют помещения естественным светом.
🌿 Класс жилья: Комфорт — высокое качество строительства.
Выгодные условия покупки: 💰
💳 Ипотека от 177 932 руб/мес.
🏦 Доступны льготные программы господдержки.
🤝 Безопасная сделка гарантирует спокойствие.
Чтобы узнать подробности и проверить актуальную стоимость — свяжитесь с нами прямо сейчас! 📞
Параметры новостройки в ЖК Жилой дом по ул. Фридриха Энгельса:
• Номер квартиры - 169
• Вариант отделки - грубая отделка
• Площадь - 90.71 м²
• Жилая Жилая - 51.13 м²
• Площадь кухни - 6.12 м²
• Класс жилья - Комфорт
• Комнат - 3-комнатная квартира
• Этаж - 6
• Дом - 19-этажный
Полезная информация о ЖК Жилой дом по ул. Фридриха Энгельса
Срок сдачи: 4 кв. 2027 г.
Срок сдачи: 4 кв. 2027 г.
Площади квартир
Этажность
Отделка
Класс жилья
Количество корпусов
Тип стен