Воронеж, улица Шишкова, 140Б/6 стр
Площадь
Жилая
Кухня
Отделка
Класс жилья
Комнат
Номер кв.
Этаж
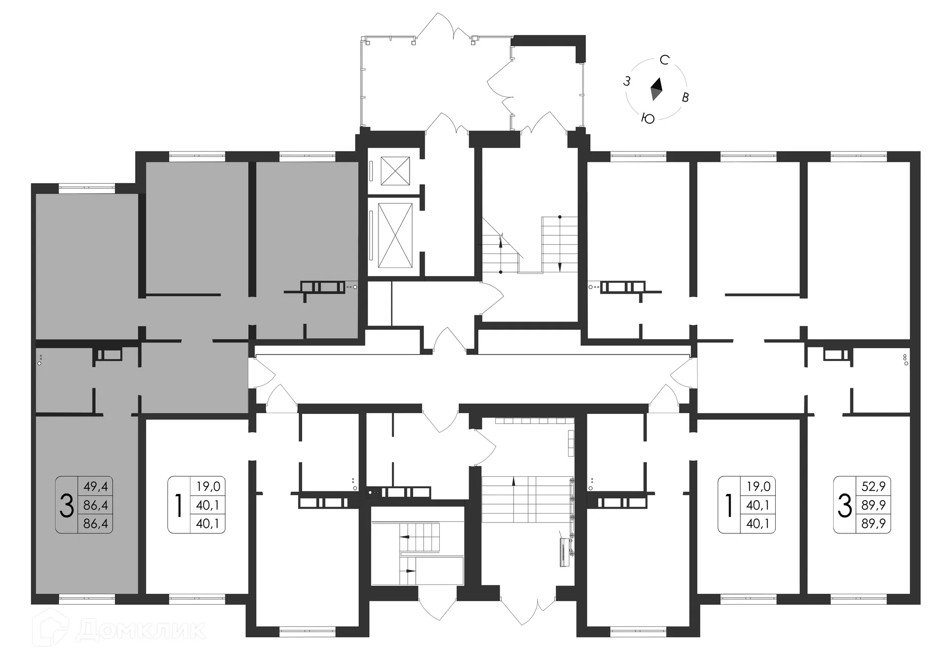
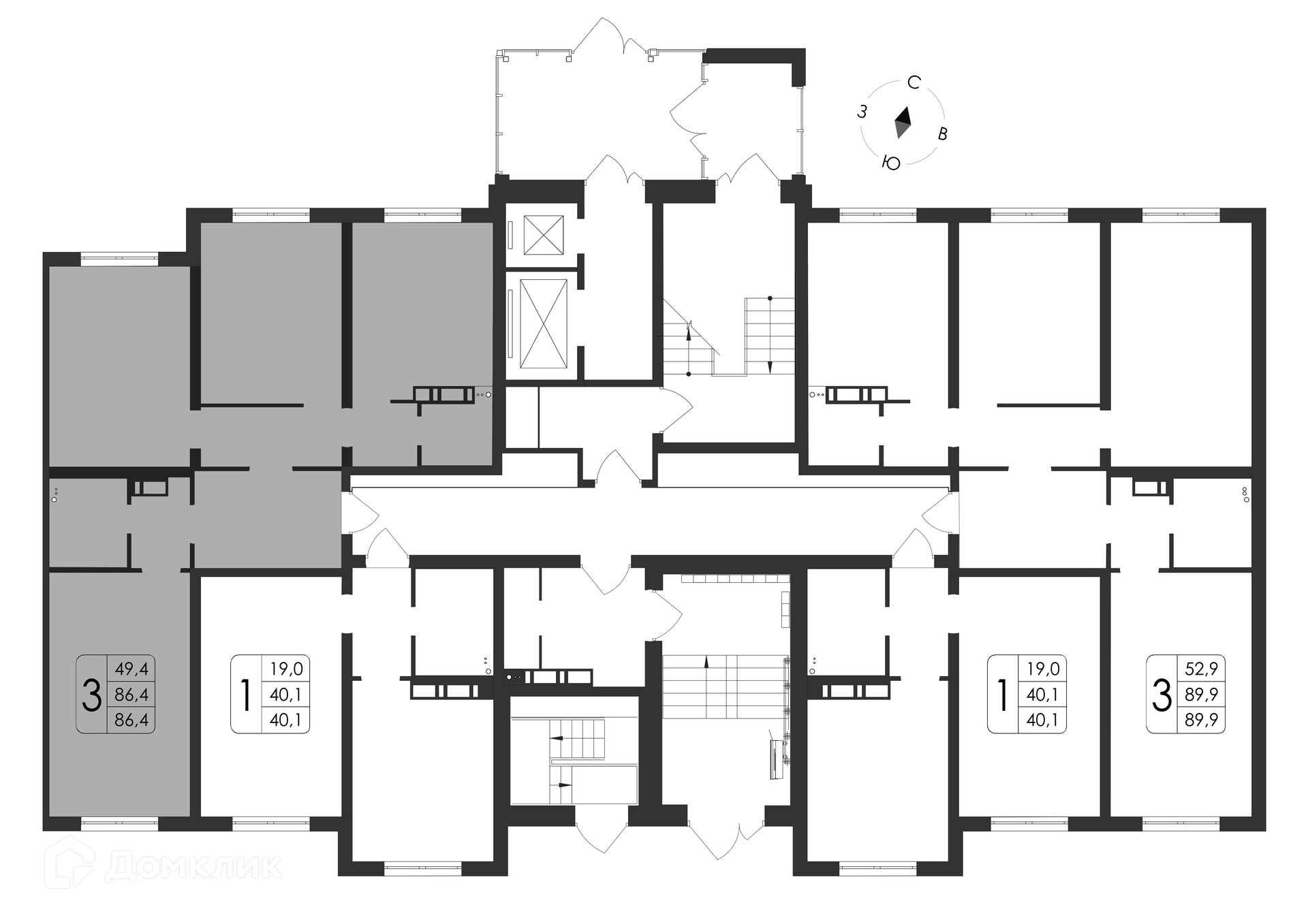
Доступна к покупке 3-комнатная квартира в современном жилом комплексе "ЖК Яблоневые сады" 🏢
Квартира расположена на 1-м этаже 22-этажного дома.
Отличный вариант для комфортной жизни.
Функциональная планировка: 📐
✅ Общая площадь: 86.4 м².
✅ Светлая жилая площадь: 49.4 м².
✅ Кухня: 13.4 м² — место для кулинарных шедевров.
Особенности квартиры: ✨
🔧 Вариант отделки: грубая отделка. Это позволит вам сразу приступить к ремонту.
🌞 Панорамное остекление наполняют помещения естественным светом.
🌿 Класс жилья: Эконом — современные технологии.
Финансы и ипотека: 💰
💳 Ипотека от 80 881 руб/мес.
🏦 Подходит под семейную и IT ипотеку.
🤝 Эскроу-счета гарантирует спокойствие.
Чтобы узнать подробности и проверить актуальную стоимость — позвоните нам прямо сейчас! 📞
Параметры новостройки в ЖК Яблоневые сады:
• Номер квартиры - 4
• Вариант отделки - грубая отделка
• Площадь - 86.4 м²
• Жилая Жилая - 49.4 м²
• Площадь кухни - 13.4 м²
• Класс жилья - Эконом
• Комнат - 3-комнатная квартира
• Этаж - 1
• Дом - 22-этажный
Полезная информация о ЖК Яблоневые сады
В жилом комплексе проектом предусмотрено 11 жилых домов (2 уже сданы) с использованием технологий монолитного и объемно-блочного домостроения
• Комплекс из 17/21 этажных жилых домов
• Квартиры с черновой отделкой
• Большой выбор просторных и функциональных планировок
• Рядом современный образовательный комплекс: мега-школа, школы и детские сады, поликлиника
• В этом районе проектом предусмотрены детская школа искусств на 1400 мест, спорткомплекс для занятий 42 видами с порта
• Ландшафтное озеленение, стильные входные группы, современные игровые комплексы в экостиле, велопарковки на территории
• Уютный дворовые пространства без машин
• Безбарьерная среда по всей территории
• Система видеонаблюдения и возможность дистанционного управления домофоном со смартфона
• Рядом лесопарк, ботанический сад и Центральный парк
• 15 минут до центра города
Рассрочка. Трейд-ин.
Действующие ипотечные ставки и акции – уточняйте в офисе продаж застройщика.
Удобная опция для клиентов – услуга собственного менеджера по ипотечному кредитованию. Специалисты обеспечат вам комфортные условия получения кредита и будут рядом на каждом этапе, возьмут на себя все взаимодействие с банком.
Шоу-румы на территории ЖК «Яблоневые сады». Демонстрационные пространства позволяют своими глазами увидеть, как будет выглядеть ваша квартира, построенная по технологии завода «ВЫБОР-ОБД»: оценить габариты, качество отделки и возможности по расстановке мебели.
Срок сдачи: 3 кв. 2023 г.
Срок сдачи: 3 кв. 2023 г.
Площади квартир
Этажность
Отделка
Класс жилья
Количество корпусов
Тип стен