Воронеж, Жилой комплекс "Ю"
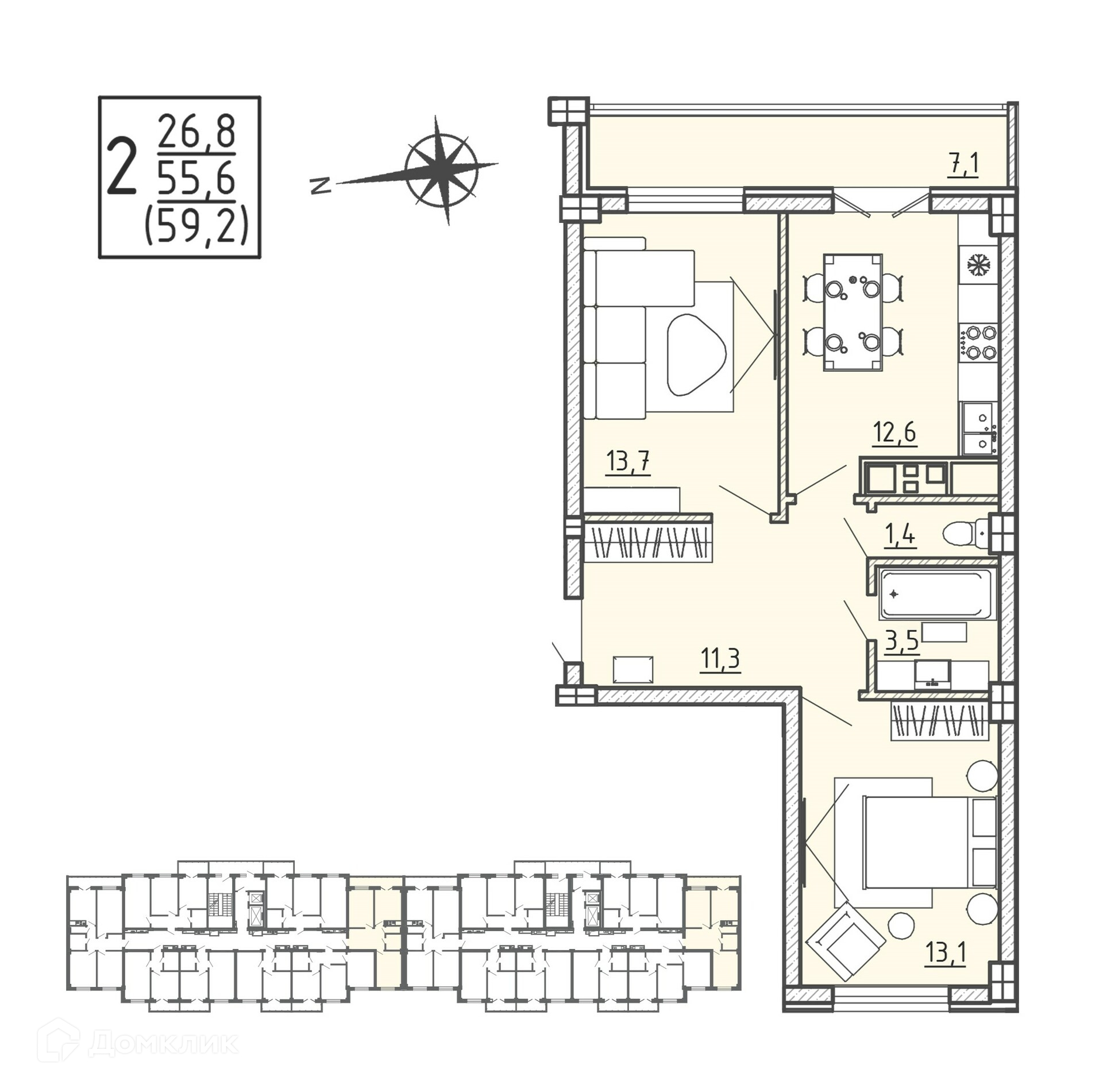
Площадь
Жилая
Кухня
Отделка
Класс жилья
Комнат
Номер кв.
Этаж
Доступна к покупке 2-комнатная квартира в новом жилом комплексе "ЖК "Ю"" 🏢
Квартира расположена на 15-м этаже 16-этажного дома.
Отличный вариант для комфортной жизни.
Функциональная планировка: 📐
✅ Общая площадь: 59.2 м².
✅ Светлая жилая площадь: 26.8 м².
✅ Кухня: 12.6 м² — эргономичное пространство.
Особенности квартиры: ✨
🔧 Вариант отделки: чистовая отделка. Это позволит вам сразу приступить к ремонту.
🌞 Панорамное остекление наполняют помещения естественным светом.
🌿 Класс жилья: Эконом — высокое качество строительства.
Выгодные условия покупки: 💰
💳 Ипотека от 51 294 руб/мес.
🏦 Подходит под семейную и IT ипотеку.
🤝 Покупка напрямую от застройщика гарантирует спокойствие.
Для бесплатного бронирования и проверить актуальную стоимость — свяжитесь с нами прямо сейчас! 📞
Параметры новостройки в ЖК "Ю":
• Номер квартиры - 232
• Вариант отделки - чистовая отделка
• Площадь - 59.2 м²
• Жилая Жилая - 26.8 м²
• Площадь кухни - 12.6 м²
• Класс жилья - Эконом
• Комнат - 2-комнатная квартира
• Этаж - 15
• Дом - 16-этажный
Полезная информация о ЖК "Ю"
Жилой комплекс «Ю» расположен в 15 минутах езды от центра города, в районе со сложившейся, максимально развитой инфраструктурой. В пешей доступности от ЖК расположены общеобразовательные школы, детские сады, школа искусств, спортивные комплексы для занятий различными видами спорта детей и взрослых. Для прогулок на свежем воздухе рядом есть прекрасный зелёный парк «Южный», в котором расположен новый, современный плавательный бассейн «Волна».
Срок сдачи: 4 кв. 2024 г.
Срок сдачи: 4 кв. 2024 г.
Площади квартир
Этажность
Отделка
Класс жилья
Количество корпусов
Тип стен