Воронеж, проспект Труда, 139Б
Площадь
Жилая
Кухня
Отделка
Класс жилья
Комнат
Номер кв.
Этаж
В продаже 1-комнатная квартира в современном жилом комплексе "ЖК НОВЫЙ СОЛНЕЧНЫЙ" 🏢
Квартира расположена на 2-м этаже 19-этажного дома.
Отличный вариант для инвестиций.
Продуманная планировка: 📐
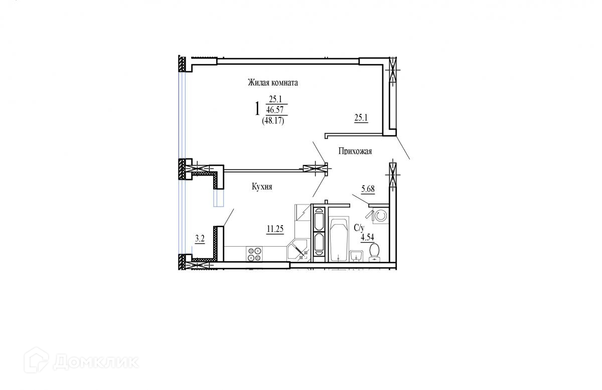
✅ Общая площадь: 48.17 м².
✅ Уютная жилая площадь: 0 м².
✅ Кухня: 0 м² — эргономичное пространство.
Особенности квартиры: ✨
🔧 Вариант отделки: предварительная отделка. Это позволит вам сразу приступить к ремонту.
🌞 Панорамное остекление наполняют помещения природным светом.
🌿 Класс жилья: Комфорт — современные технологии.
Выгодные условия покупки: 💰
💳 Ипотека от 46 446 руб/мес.
🏦 Доступны льготные программы господдержки.
🤝 Безопасная сделка гарантирует надежность.
Для бесплатного бронирования и зафиксировать цену — свяжитесь с нами прямо сейчас! 📞
Параметры новостройки в ЖК НОВЫЙ СОЛНЕЧНЫЙ:
• Номер квартиры - 69
• Вариант отделки - предварительная отделка
• Площадь - 48.17 м²
• Жилая Жилая - 0 м²
• Площадь кухни - 0 м²
• Класс жилья - Комфорт
• Комнат - 1-комнатная квартира
• Этаж - 2
• Дом - 19-этажный
Полезная информация о ЖК НОВЫЙ СОЛНЕЧНЫЙ
Срок сдачи: 2 кв. 2025 г.
Срок сдачи: 2 кв. 2025 г.
Площади квартир
Этажность
Отделка
Класс жилья
Количество корпусов
Тип стен