Воронеж, бульвар Содружества, 1
Площадь
Жилая
Кухня
Отделка
Класс жилья
Комнат
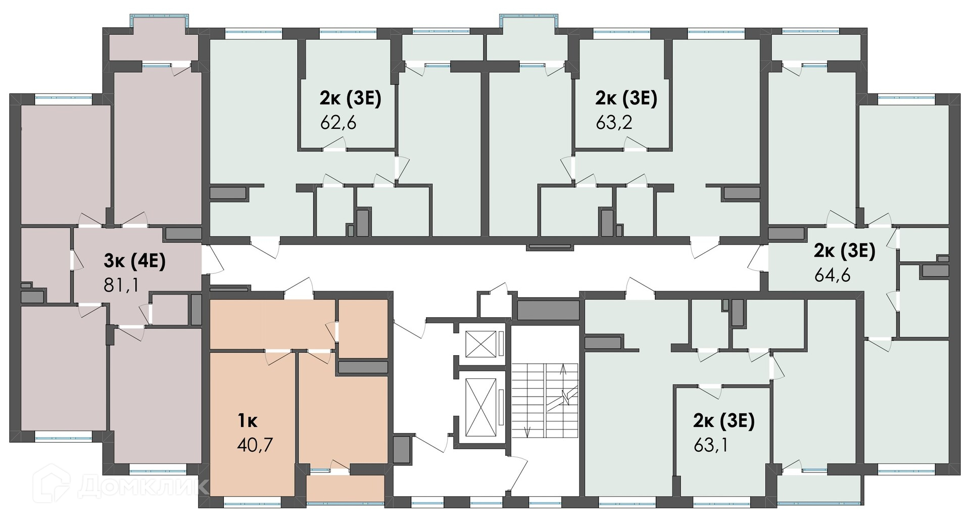
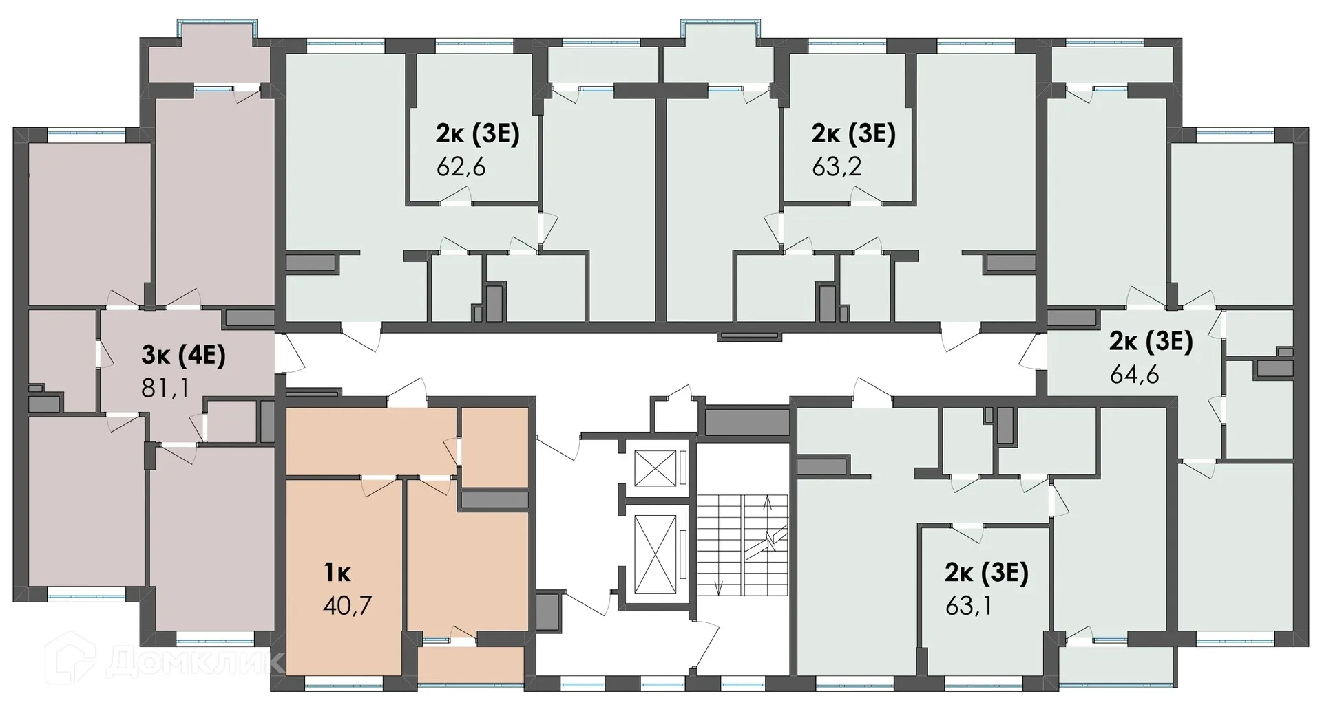
Номер кв.
Этаж
Доступна к покупке 2-комнатная квартира в востребованном жилом комплексе "ЖК Джаз" 🏢
Квартира расположена на 2-м этаже 14-этажного дома.
Прекрасный выбор для комфортной жизни.
Функциональная планировка: 📐
✅ Общая площадь: 63.1 м².
✅ Просторная жилая площадь: 25.3 м².
✅ Кухня: 16.7 м² — эргономичное пространство.
Преимущества квартиры: ✨
🔧 Вариант отделки: предварительная отделка. Готовая база для вашего интерьера.
🌞 Большие окна наполняют помещения природным светом.
🌿 Класс жилья: Комфорт — благоустроенная территория.
Финансы и ипотека: 💰
💳 Ипотека от 76 915 руб/мес.
🏦 Доступны льготные программы господдержки.
🤝 Покупка напрямую от застройщика гарантирует надежность.
Для бесплатного бронирования и зафиксировать цену — свяжитесь с нами прямо сейчас! 📞
Параметры новостройки в ЖК Джаз:
• Номер квартиры - 394
• Вариант отделки - предварительная отделка
• Площадь - 63.1 м²
• Жилая Жилая - 25.3 м²
• Площадь кухни - 16.7 м²
• Класс жилья - Комфорт
• Комнат - 2-комнатная квартира
• Этаж - 2
• Дом - 14-этажный
Полезная информация о ЖК Джаз
Квартиры в ЖК «Джаз» от застройщика ООО СЗ «Комфортстрой» с максимальной выгодой, акциями и уникальными предложениями по покупке.
ЖК «Джаз» — флагманский проект масштабного городского квартала "Ключи", на левом берегу Воронежа в районе Остужевской развязки.
Победитель федеральной премии Urban Awards– 2024 в номинации «Лучший строящийся региональный жилой комплекс комфорт-класса ЦФО».
Срок сдачи – 1 квартал 2025г.
Квартиры сдаются в предчистовой отделке "white box" - гипсовая штукатурка, стяжка пола, разводка электрики. Дополнительно вы можете приобрести современную кладовую (келлер), расположенную на минус первом этаже.
Квартал "Ключи" — это новая концепция городского строительства, которая подразумевает умный и экологичный подход к организации жилого пространства. "Ключи" — это "город в городе", он будет состоять из 7 жилых комплексов, насыщенных социальной инфраструктурой - практически все необходимое для комфортной жизни можно получить не покидая свой район.
Концепция "умный и зеленый город" включает:
1. Социальный кластер для детей: школа (уже построена, начало обучения 1 сентября 2023г), детский сад, спортивно-оздоровительный комплекс, практически в каждом жилом комплексе - детское игровое пространство, места для настольных игр, зоны для малышей.
2. Базовые социальные объекты: поликлиника, стоматология, магазины, банк, почта, нотариус, пункты выдачи заказов и другие услуги;
3. Спорт и хобби: воркаут-площадки (уличные тренажеры), футбольный стадион, вело-маршруты, променады для пеших прогулок;
4. Пространство для коммуникаций: соседские клубы, общественные пространства, закрытые от машин дворы располагают к непринужденному общению, знакомству с новыми людьми и добрососедским посиделкам.
5. Экологичное отношение к природе: сохранение естественного ландшафта с местными растениями, организация раздельного сбора мусора, площадки для выгула животных.
6. Современная цифровизация: мобильное приложение, где жители ЖК смогут оплачивать счета в один клик, подавать заявки в УК, управлять доступом в дом и двор (посредством Face ID), получать дополнительные сервисы через встроенный маркетплейс.
7. Комфортное автовладение: зарядные станции для электроавтомобилей, выделенные парковочные места, автосервисный комплекс, обеспечивающий обслуживание, ремонт и мойку автомобилей. - Культурная среда: каждый дом, подъезд и площадь имеют свой культурный код, что в целом создает атмосферу принадлежности к чему-то высокому и задает общую ценностную платформу для комфортного общения.
Идеальное место для семей с детьми:
1. в 100 метрах – открылась новая сoвpeменная шкoла федерального значения. Общеобразовательная школа, рассчитанная на 1500 мест, уже 1 сентября 2023 г. приняла первых учеников. Это важный прецедент ввода школы до завершения строительства жилого комплекса.
2. детский caд на 280 мест (2024 –2025 год) – стадион (2025 год) – спортивные секции и доп. образование для детей
3. поликлиника на 2 тыс человек – остaновкa oбществeннoго транспоpтa у выхода с ЖК.
Жители получат единое мобильное приложение, через которое смогут:
1. управлять доступом в дом и на территорию двора;
2. просматривать видеокамеры;
3. оплачивать счета в один клик;
4. автоматически отправлять показания счетчиков;
5. подавать заявки в УК;
6. получать доп. сервисы через встроенный маркетплейс.
Во всех квартирах увеличенные энергосберегающие окна с низкоэмиссионными стеклопакетами и повышенной шумоизоляцией.
---------------------------------------------------
Ипотека и Акции.
1. Семейная субсидированная ипотека от застройщика – 3.5%
Покупателям квартир в ЖК Джаз застройщик уменьшает процентную ставку по Семейной ипотеке НА ВЕСЬ СРОК КРЕДИТОВАНИЯ без завышения стоимости квартиры.
2. Семейная ипотека – от 6% (для семей с детьми до 7 лет)
Общие условия: Первоначальный взнос: от 20 % Срок кредитования: до 30 лет Сумма кредита: от 300 тыс. до 6 млн рублей
3. Рассрочка под 0% –до 18 мес.
Покупай сейчас - плати потом!
4. Меняйте свою квартиру на новую квартиру в ЖК Джаз.
Подробности – в отделе продаж.
5. Ипотека для всех от ВТБ – 12%
Срок сдачи: 1 кв. 2025 г.
Срок сдачи: 1 кв. 2025 г.
Площади квартир
Этажность
Отделка
Класс жилья
Количество корпусов
Тип стен